Pump House Section and Reinforcement Layout in AutoCAD File
Description
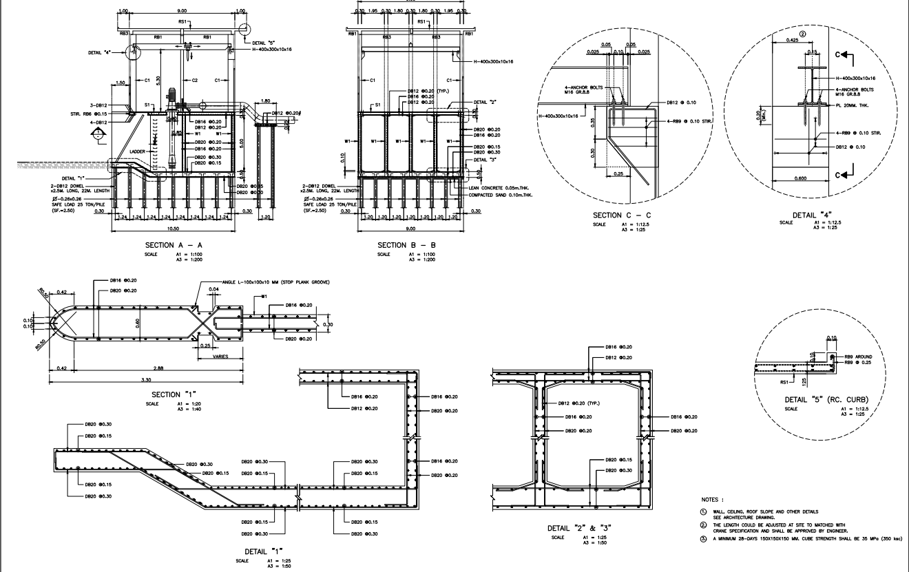
Comprehensive structural drawing detailing the reinforcement, sectional views, and concrete specifications for a pump house. Includes sections, and multiple reinforcement bar layouts for walls, slabs, and curbs. Essential for construction accuracy and structural strength validation.
File Type:
DWG
File Size:
16.2 MB
Category::
Construction
Sub Category::
Construction Detail Drawings
type:
Gold

Uploaded by:
Eiz
Luna

