3 BHK compact apartment DWG with 82x65ft stilt and floor plan
Description
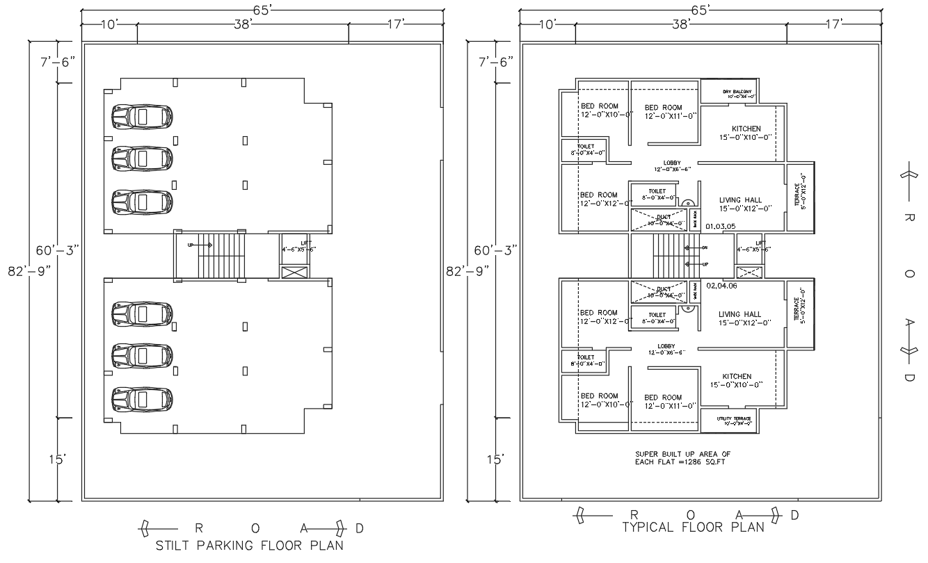
This AutoCAD DWG file provides a complete 82 x 65 ft 3 BHK compact apartment layout, including a stilt parking plan and a fully detailed typical floor plan. The stilt parking floor accommodates vehicle bays arranged across 60 ft 3 in of buildable width, with wide circulation for easy entry and exit. The central staircase block and lift core measuring 6 ft 8 in x 5 ft ensure vertical movement to the upper floors. Structural columns, open parking slots and boundary offsets are clearly marked for construction accuracy.
The typical floor plan contains two compact 3 BHK flats, each with a super built-up area of 1286 sq ft. Bedrooms are dimensioned at 12 ft x 10 ft, 12 ft x 11 ft, and 12 ft x 12 ft, while the living hall measures 15 ft x 12 ft. Each flat includes 8 ft x 4 ft toilet spaces, a 12 ft x 6 ft lobby, and a modern kitchen sized 15 ft x 10 ft with a dedicated utility terrace. Dry balconies, duct spaces, and symmetric unit planning contribute to efficient ventilation and lighting. This DWG drawing is ideal for architects, civil engineers and residential planners seeking a compact, well-organised 3 BHK layout suitable for urban housing projects.
Uploaded by:
K.H.J
Jani

