G plus 2 House Plan with Section and Site Layout in DWG File

G plus 2 House Plan with Section and Site Layout in DWG File
Profile

Uploaded by:

K.H.J

Jani

Description
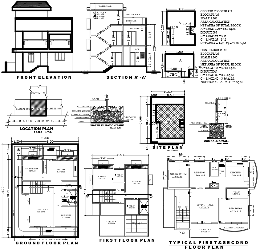
Explore this detailed G+2 house DWG plan with front elevation, section view, floor plans, site plan, water tank, and compound wall layout.
Profile

Uploaded by:

K.H.J

Jani

find Latest

Related Files

WhatsApp Chat