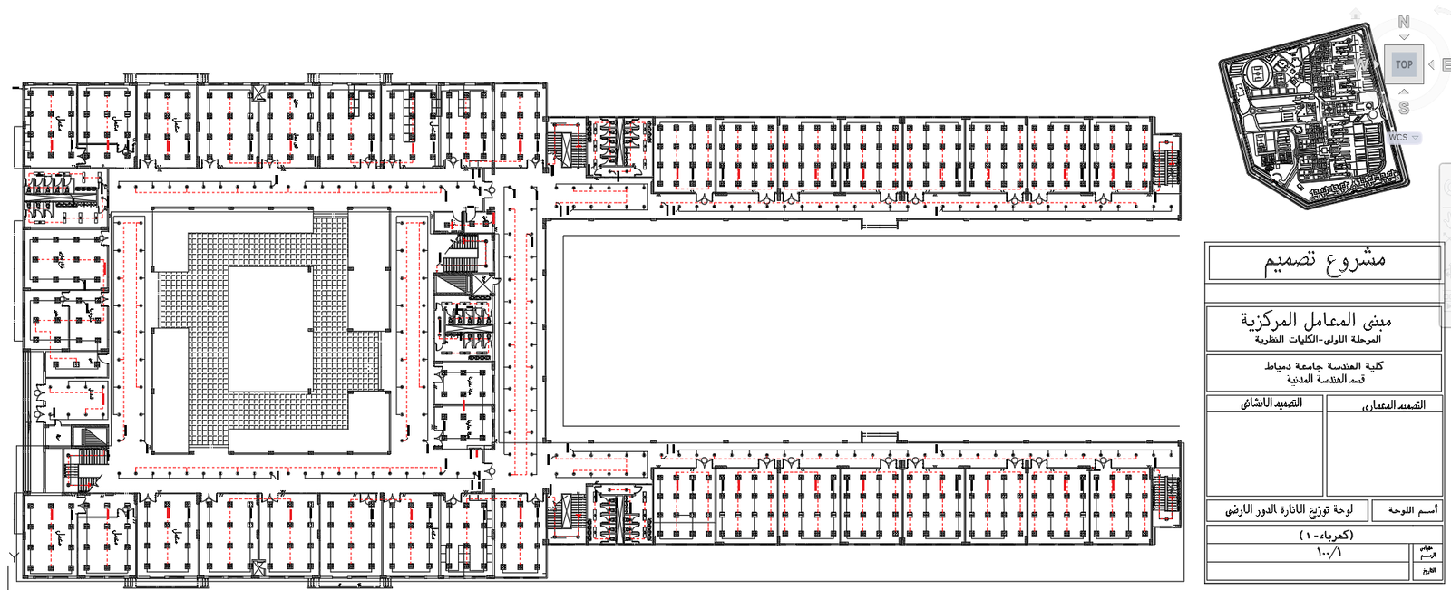
Central Laboratory Building Ground Floor Plan in CAD Format
Description
Explore the detailed ground floor plan layout of the Central Lab Building for engineering colleges, featuring electrical, structural, and plumbing designs.

Uploaded by:
Jafania
Waxy

