1RK Compact Apartment AutoCAD Floor Plan With Kitchen Living Bath

1RK Compact Apartment AutoCAD Floor Plan With Kitchen Living Bath
Profile

Uploaded by:

Poonam

Description

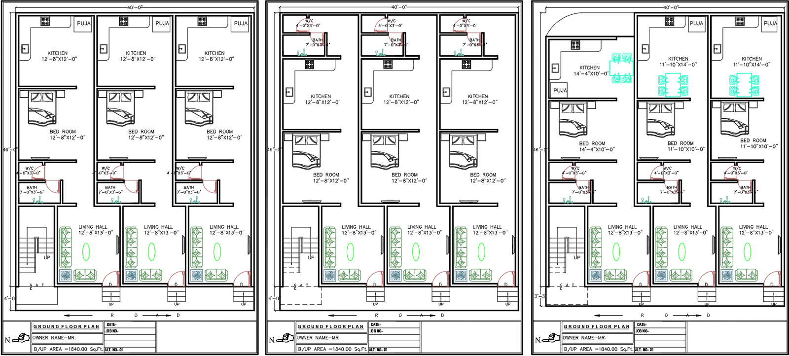
This 1RK compact apartment AutoCAD floor plan presents a smart and space-efficient residential layout suitable for budget housing and rental apartment projects. The drawing shows a well-planned single room kitchen unit with clearly defined living hall, bedroom, kitchen, pooja space, bath, and WC areas. The typical unit layout includes a living hall measuring approximately 12 ft 8 in by 13 ft 0 in, connected to a bedroom of around 12 ft 8 in by 12 ft 0 in, providing comfortable residential usability. Kitchen sizes are shown around 12 ft 8 in by 12 ft 0 in with proper placement of counters and utility access. Bath and WC areas are dimensioned separately for functional daily use and privacy.

The AutoCAD plan also illustrates repetitive unit planning across the floor for efficient construction and uniform layout execution. Staircase access, circulation entry points, and internal wall alignments are clearly marked with consistent measurements and labeling. Built-up area details and orientation references are included to support planning approval and execution drawings. This 1RK apartment floor plan is ideal for architects, civil engineers, and builders working on compact residential developments requiring accurate CAD documentation for AutoCAD-based design and future BIM or 3D modeling workflows.

Profile

Uploaded by:

Poonam

find Latest

Related Files

WhatsApp Chat