AutoCAD DWG File Residential Home Design With Elevation and Section
Description
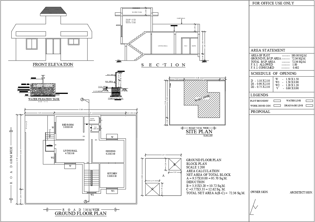
AutoCAD DWG of single floor residential house plan with front elevation, site plan, section, and detailed area statement showing 72.36 sq.m built-up area.
Uploaded by:
AutoCAD DWG of single floor residential house plan with front elevation, site plan, section, and detailed area statement showing 72.36 sq.m built-up area.
Uploaded by: