Modular Kitchen AutoCAD DWG Plan with Section and Detail Drawings
Description
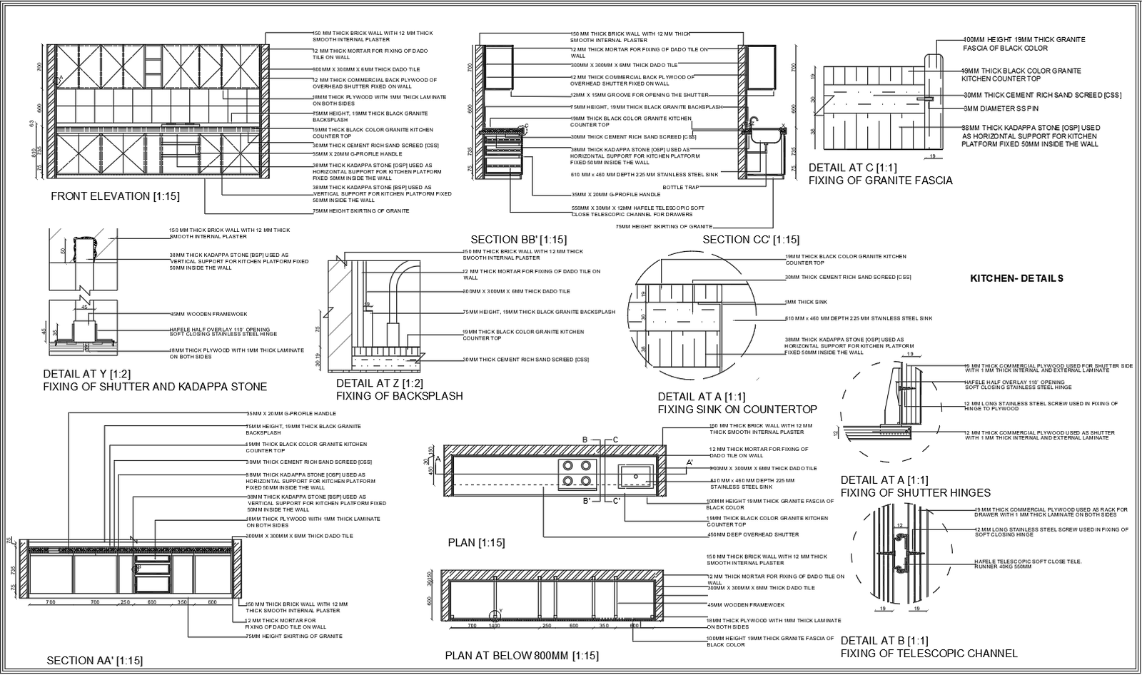
Download a modular kitchen AutoCAD DWG plan with sectional elevations, fixing details, and material specifications. Ideal for architects and interior designers.
Uploaded by:

