Modern 3 Bedroom House Plan with Double Garage and Verandah Layout

Modern 3 Bedroom House Plan with Double Garage and Verandah Layout
Profile

Uploaded by:

Guptil

Description

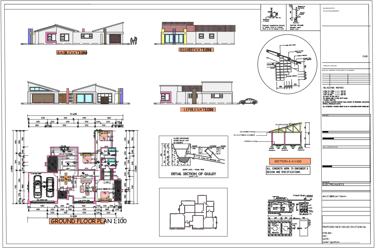
This residential ground-floor DWG features a modern 3-bedroom layout designed for comfort, functionality, and balanced circulation.

Ground Floor Spaces: The plan includes a double garage, lounge, dining room, kitchen, scullery, porch, and verandah, allowing seamless indoor-outdoor transition.

Private Zones: The master bedroom includes a dressing area and adjoining bathroom, while the additional bedrooms are positioned near shared bathrooms for practical access.

Material & Finish Notes: The layout specifies ceramic tile flooring throughout major rooms, structural notes for roof trusses, ceiling specifications, and window schedule with aluminium frame windows. The drawing also includes building notes, foundation details, drainage indicators, and sectional reference (Section A-A) for site execution.

This plan is ideal for architects, civil engineers, interior designers, and builders developing a comfortable residential family home with efficient zoning and clean architectural detailing.

Profile

Uploaded by:

Guptil

find Latest

Related Files

WhatsApp Chat