HDB 3 Room Apartment Floor Plan With Tiling and Utility Layout DWG
Description
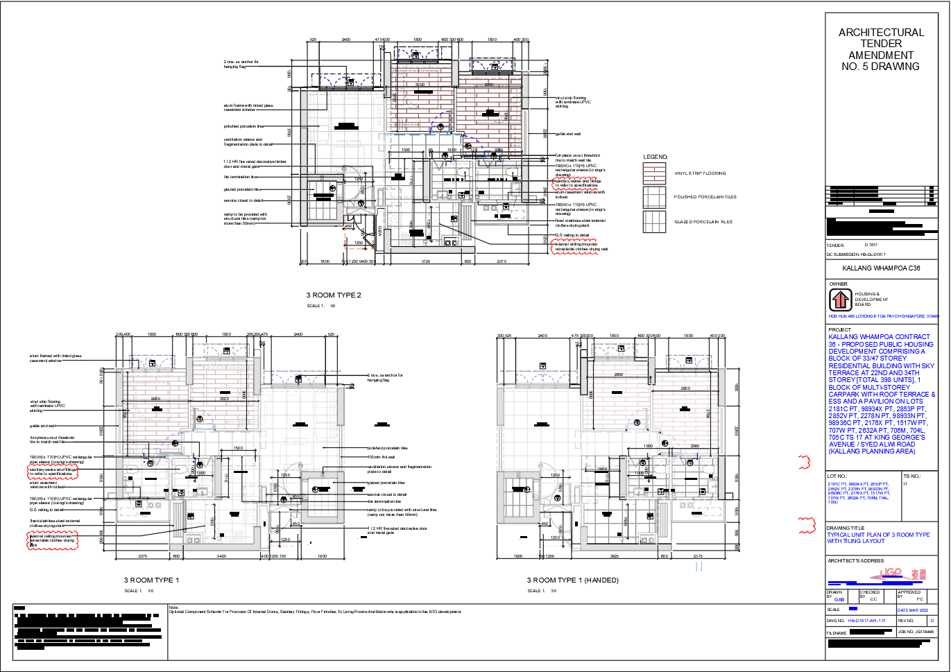
This AutoCAD DWG 3-room HDB apartment layout presents a typical residential unit plan with complete tiling, flooring, windows, sanitary fittings, and household shelter details. The layout includes a Living / Dining area, Main Bedroom, Bedroom 2, Kitchen / Utility space, 2 Bathrooms, Household Shelter, and an AC Ledge for outdoor mechanical equipment installation.
Floor Finishes:
- Living / Dining & Bedrooms: Vinyl strip flooring with UPVC skirting
- Kitchen & Bathrooms: Polished and glazed porcelain tiles
- Thresholds: Full-piece uncut tile transitions matching wall tile patterns
Windows & Fixtures:
- Aluminium framed casement windows (CFW 1 & CFW 2 types)
- UPVC ventilation sleeves (190mm x 110mm) for bathroom exhaust
- Retractable ceiling-mounted clothes drying rack in the utility zone
- G.S. railing and stainless-steel drying ledge included at the AC ledge
Doors:
- 1/2 hour fire-rated entrance door with matching metal gate
This plan is ideal for architects, civil engineers, contractors, and interior designers referencing HDB interior, flooring, sanitary layout, and unit planning standards.

Uploaded by:
Niraj
yadav

