Bedroom and Kitchen Interior Furniture Layout with Wardrobe Details
Description
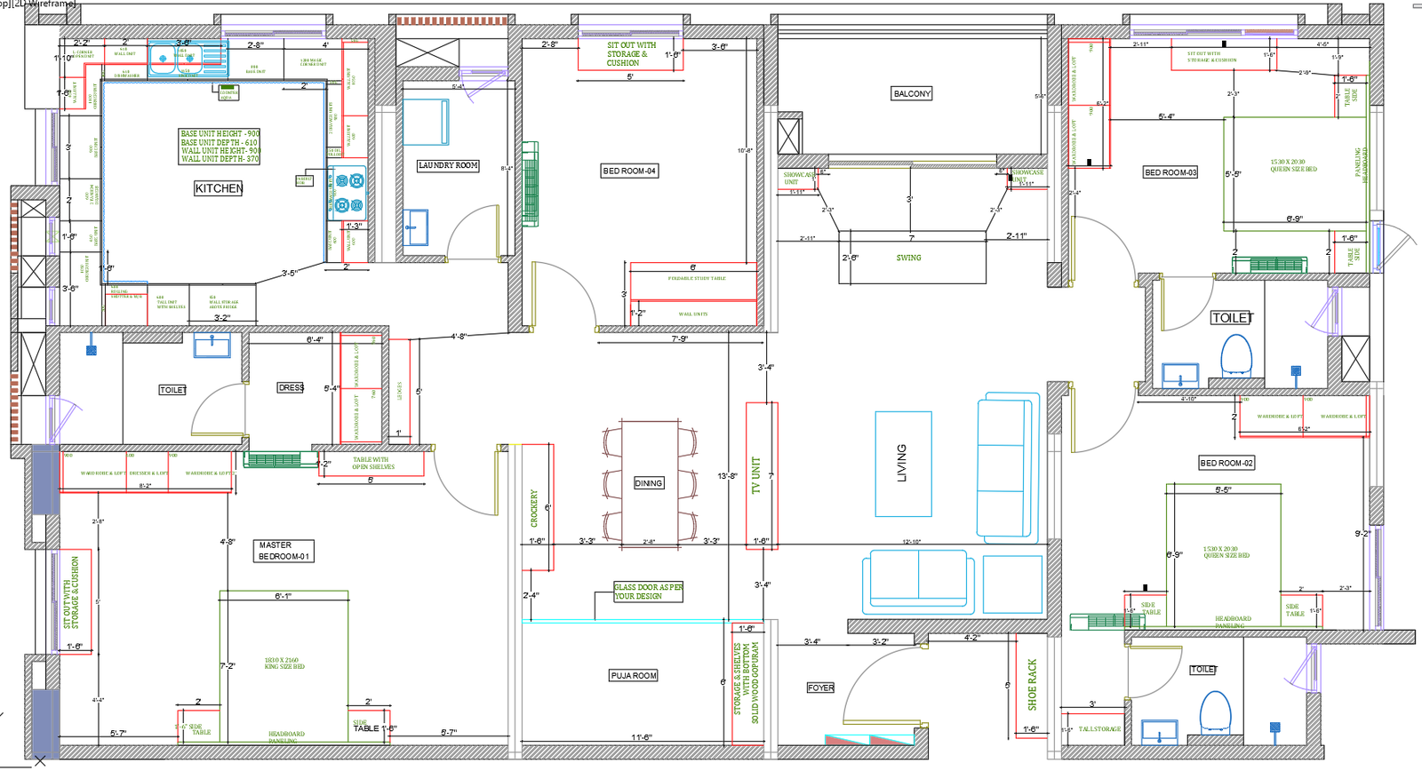
This AutoCAD DWG interior furniture layout shows a complete arrangement for a residential house, including bedrooms, kitchen, dining area, living space, puja room, and study elements. The Kitchen layout includes a Tall Unit, a Sink Unit (5'-4"), an Aqua Unit, a Rolling Shutter Counter, a Base Unit (900 mm height, 610 mm depth), and Wall Units (900 mm height, 370 mm depth). The Dining area features a 5'-5" dining table with open shelves.
Bedroom-01 includes a King Size Bed (1830 x 2160) with Side Tables (1'-6" each), Wardrobe and Loft (600 mm depth), and Headboard Panelling.
Bedroom-02 & Bedroom-03 feature Queen Size Beds (1530 x 2030), a Foldable Study Table, and a Wardrobe with Loft (600 mm depth).
A Puja Room (6'-0" width) is positioned near the Foyer (5'-0" width). The plan also includes Sit-out Seating with Storage, Laundry Room (8'-4" length), Showcase Units, and TV Panel Units, providing clear interior organisation for practical use and execution.
This drawing is suitable for architects, interior designers, civil engineers, contractors, and those planning residential interior layouts with precise measurement coordination.
File Type:
DWG
File Size:
225 KB
Category::
Interior Design
Sub Category::
Architectural Bathrooms And Interiors
type:
Gold
Uploaded by:

