Fordable leaf window design with sectional view dwg file
Description
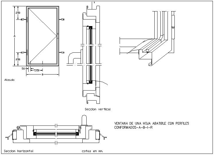
Fordable leaf window design with sectional view dwg file with view of window with
dimension and sectional view of horizontal and vertical view Fordable leaf window design with sectional view dwg file.
File Type:
DWG
File Size:
20 KB
Category::
Dwg Cad Blocks
Sub Category::
Windows And Doors Dwg Blocks
type:
Gold
Uploaded by:

