Apartment Typical Terrace Floor Plans with Room Sizes in DWG
Description
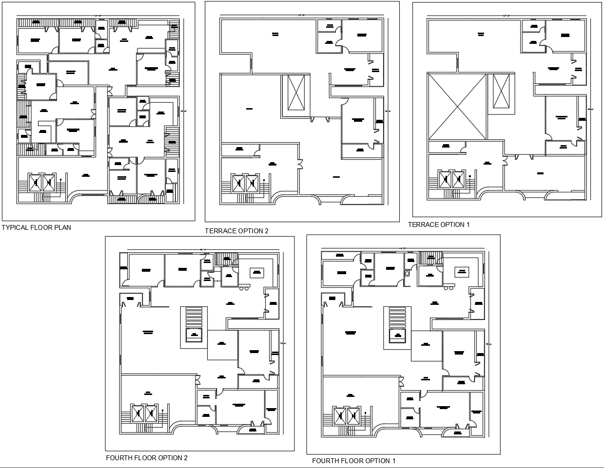
This AutoCAD DWG floor plan set provides the Typical Floor Plan, Terrace Options 1 & 2, and Fourth Floor Options with clear room measurements and functional zoning. The layout includes living areas (e.g., 20'-3" x 13'-3"), bedrooms (e.g., 15'-3" x 10'-6"), balconies (e.g., 5'-9" x 6'-0"), kitchens, utility areas, attached and common toilets, and structured circulation with lift and staircase cores.
Highlight features:
• Multiple floor configuration options for residential design flexibility
• Precise room dimensions to support accurate space planning
• Balcony, walk-in and utility spaces included for functional layouts
• Suitable for Apartment Planning, Building Design & 3D Modelling Workflows
This drawing is ideal for architects, civil engineers, builders, interior designers, and students working on residential multi-floor apartment projects.

Uploaded by:
Niraj
yadav

