Office Building Ground Floor Plan DWG with 50 Office Units Layout
Description
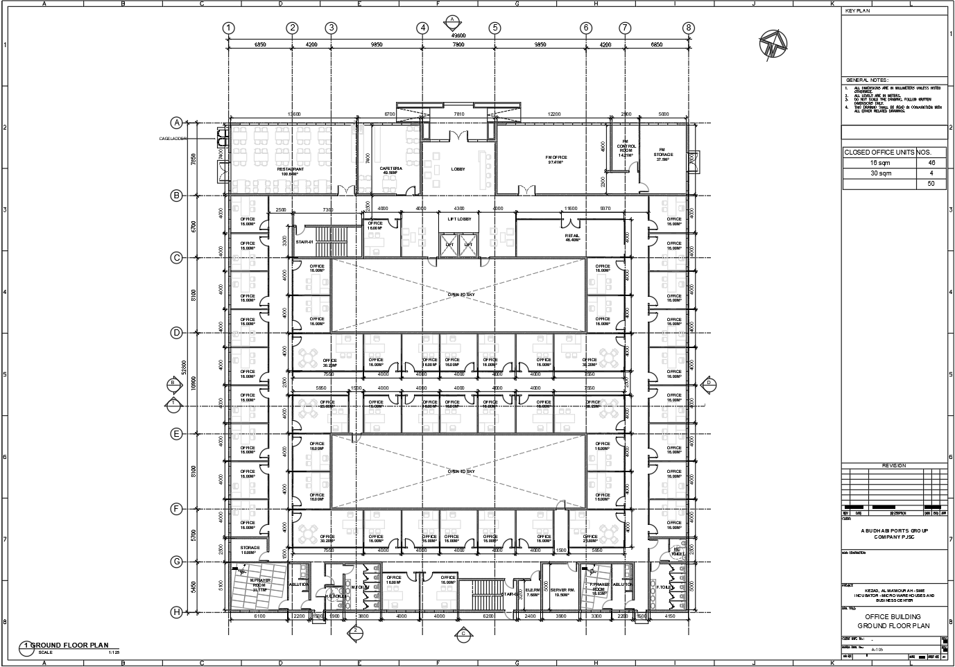
This office building ground floor plan DWG features a detailed commercial layout designed for efficient workspace planning.
The drawing includes 50 closed office units in two size configurations (10 sqm & 30 sqm), arranged around a central open-to-sky atrium to ensure natural ventilation and daylight flow. The plan shows precise column grid dimensions (6350, 4200, 9450, 7600, 9350 mm spans) and clearly marked circulation paths. Functional spaces include a restaurant area, cafeteria, FM office, storage room, staircases, lift lobby, and service core.
This DWG file is highly beneficial for architects, civil engineers, interior designers, and commercial project planners who require accurate working drawings for execution, BOQ preparation, or design development.

Uploaded by:
Wang
Fang

