20x60 Feet Architecture Residential Building AutoCAD DWG Plan Design

20x60 Feet Architecture Residential Building AutoCAD DWG Plan Design
Profile

Uploaded by:

john

kelly

Description

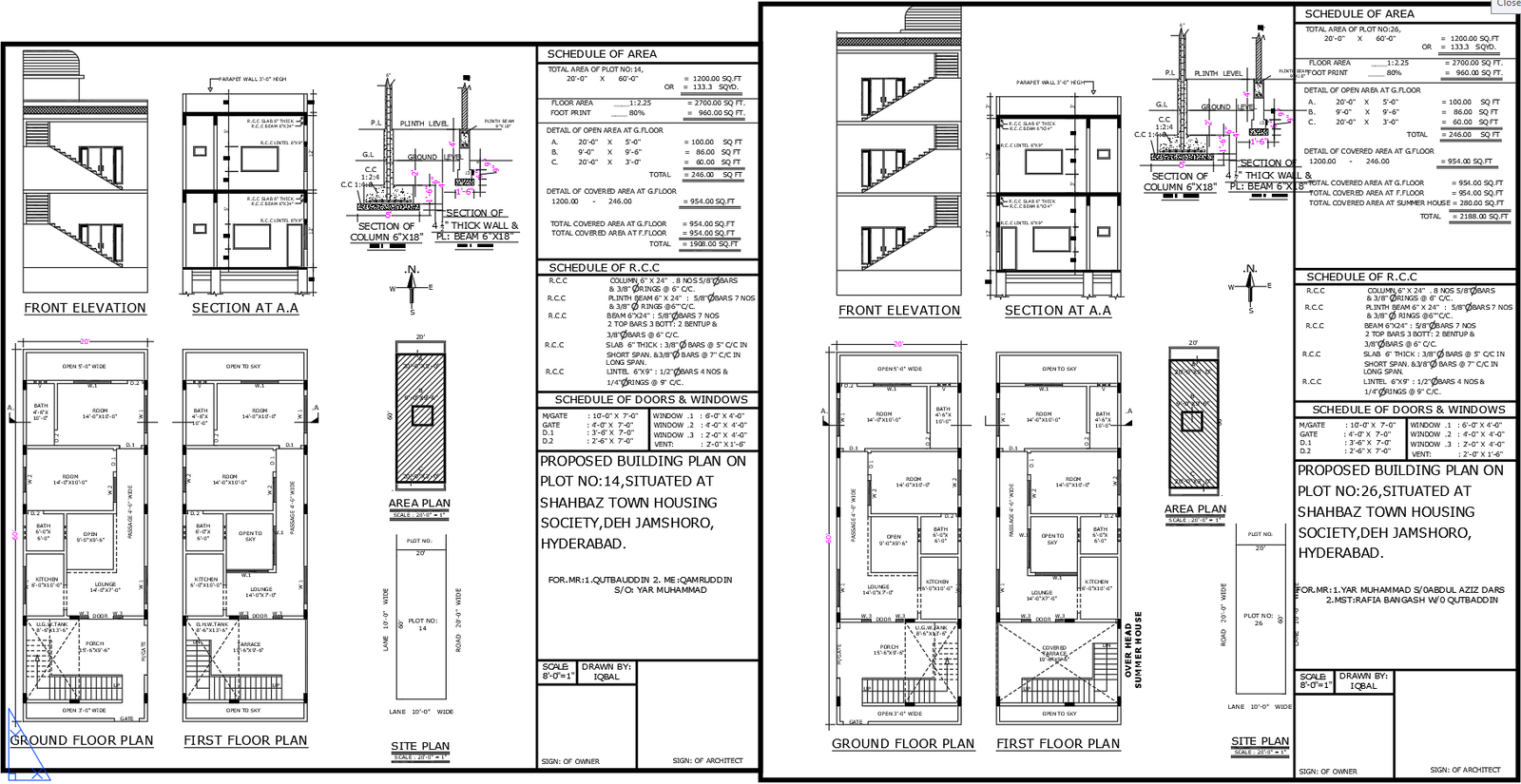
This AutoCAD DWG drawing features a complete residential building design on a 20x60 feet (1200 sq.ft) plot, including ground and first-floor plans, front elevation, sectional view (A-A), RCC schedule, and area plan. Designed for compact plots, this layout maximizes space efficiency while maintaining functionality and ventilation across all floors.

The ground floor plan includes a porch (15’-6”x9’-6”), two bedrooms (14’-0”x10’-0”), lounge (14’-0”x7’-0”), kitchen (6’-0”x10’-0”), and bathroom (4’-6”x10’-0”). The first-floor layout mirrors the lower floor with a terrace and open-to-sky area to enhance natural lighting. The drawing also details columns (6”x24”), RCC beams (6”x24”), slabs (6” thick), and lintels (6”x9”), ensuring full structural clarity for construction professionals.

Key Highlights:

  • Compact residential layout ideal for 20x60 ft plots.
  • Full RCC detailing with beam, column, and slab specifications.
  • Includes elevation, sectional plan, and area calculations.
  • Total covered area: 954 sq.ft per floor and 1908 sq.ft total.
  • Suitable for architects, civil engineers, and AutoCAD professionals designing small urban homes.
  • Editable DWG format compatible with AutoCAD, Revit, and SketchUp.
Profile

Uploaded by:

john

kelly

find Latest

Related Files

WhatsApp Chat