Detailed Hotel Ground Floor Dimension Plan AutoCAD Drawing 1 50 Scale
Description
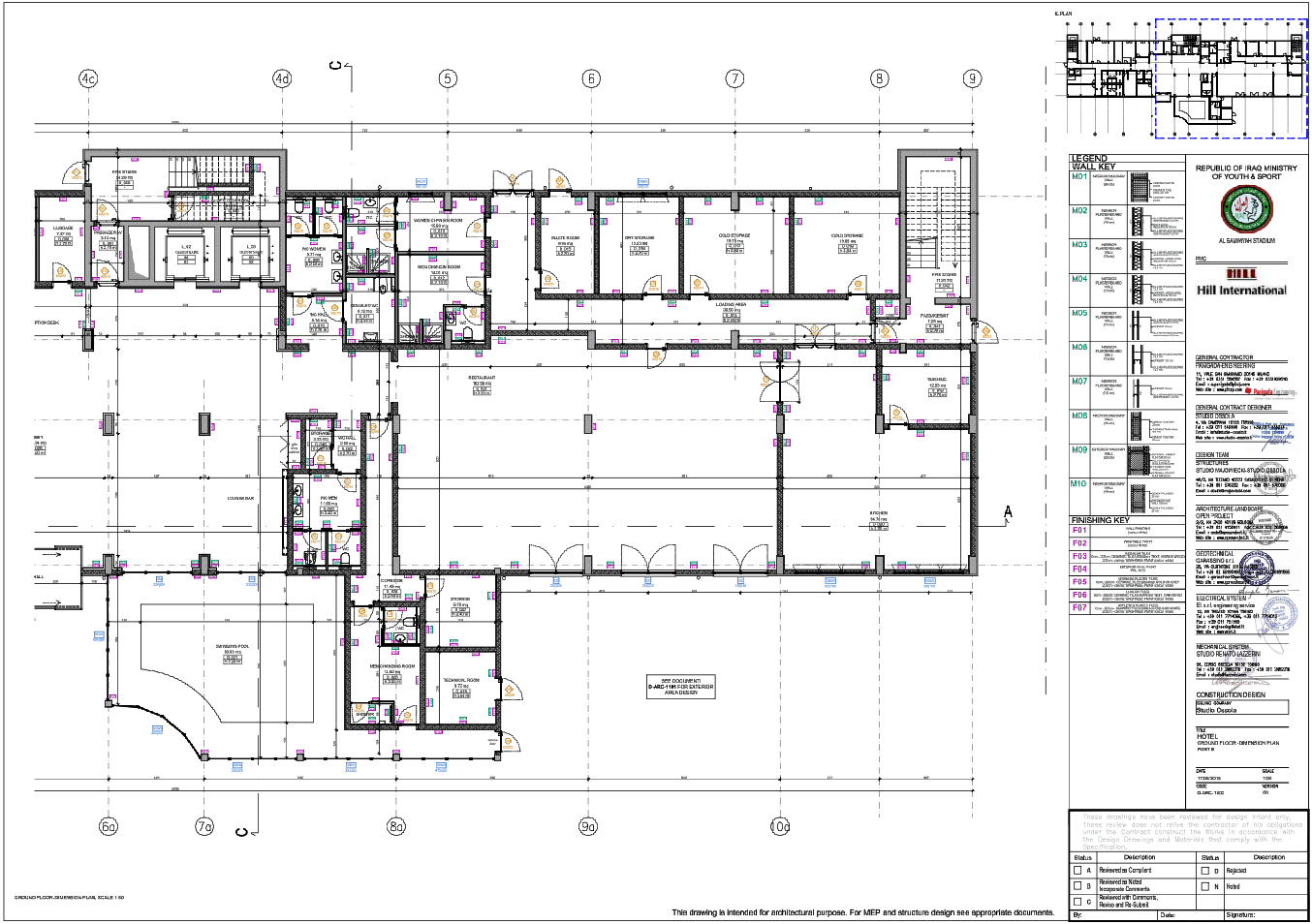
This Hotel Ground Floor Dimension Plan AutoCAD drawing provides a highly detailed architectural layout prepared at 1:50 scale, suitable for professional use in project design, documentation, and construction planning. This DWG file covers all major ground-floor functional zones, such as lobby, reception, restaurant, kitchen, service rooms, changing rooms, storage, technical rooms, swimming pool area, and more, complete with accurate measurements, wall types, material codes, door schedules, and finishing keys.
Key Highlights of This Drawing:
- Complete Ground Floor Layout with clear dimensions, axis lines, room labels, and circulation planning.
- Detailed Room Measurements including lobby (approx. 208.54 sqm), restaurant (162.96 sqm), swimming pool (83.83 sqm), kitchen (64.78 sqm), cold storage (19.79–19.85 sqm), loading area (38.56 sqm), women’s and men’s changing rooms (14–16 sqm), multiple WC rooms, passages, and service areas.
- Accurate Wall Construction Types are defined in a detailed wall key, including masonry walls, thermo-stone walls, plasterboard partitions, and insulation layers.
- Finishing Material Key covering wall paint, tiles specifications, exterior finishes, and interior surface treatments with height notations.
- Door and Window Schedule with opening dimensions such as 80×210 cm, 90×215 cm, 300×220 cm, 550×220 cm, etc.
- Architectural Standards including fire stairs (17.28 sqm), lift technical room (24.29 sqm), technical rooms, and storage spaces.
- Professional Drawing Title Block with project data, notes, and construction guidance.
- Designed specifically for a Hotel Building, providing a complete professional ground-floor plan suitable for architects, civil engineers, interior designers, and BIM/CAD professionals.
This DWG is ideal for anyone needing a fully dimensioned hotel ground floor plan for reference, design development, tender documentation, or teaching and training purposes.
Uploaded by:

