House AutoCAD DWG Floor Plan with Bedrooms Lounge and Car Porch
Description
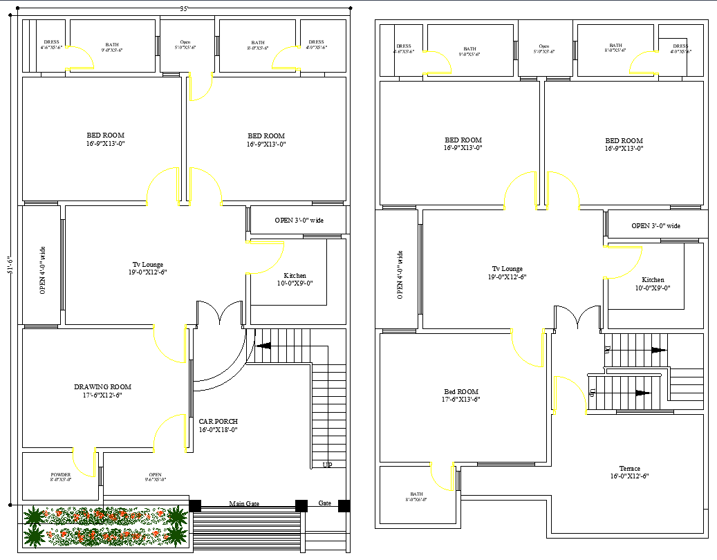
This AutoCAD DWG house floor plan presents a detailed residential layout featuring two spacious bedrooms measuring 16 ft 9 in x 13 ft, each with attached baths sized 9 ft x 5 ft 6 in and dressing rooms around 4 ft 6 in x 5 ft 6 in. The plan includes a centrally placed TV lounge of 19 ft x 12 ft 6 in, connected to a 10 ft x 9 ft kitchen, offering a functional circulation flow. A drawing room sized 17 ft 6 in x 12 ft 6 in is located near the entrance, while a powder room of 8 ft x 5 ft supports guest access. The open areas include 3 ft and 4 ft wide open strips, enhancing natural light and ventilation throughout the residence.
The layout also features a large car porch measuring 16 ft x 18 ft, providing a convenient parking space near the main gate. Additional open sections, such as a 9 ft 6 in x 5 ft outdoor area and a terrace of 16 ft x 12 ft 6 in on the upper level, further enrich the design. Stairs between floors ensure practical movement, and the presence of a spacious bedroom of 17 ft 6 in x 13 ft 6 in on the next level, with a bath and dressing area, adds versatility. This DWG plan is ideal for architects, civil engineers, interior designers, builders, AutoCAD users, and 3D professionals seeking a complete and accurately dimensioned residential drawing.
Uploaded by:

