House AutoCAD DWG Plan with Spacious Bedroom Layout and Porch
Description
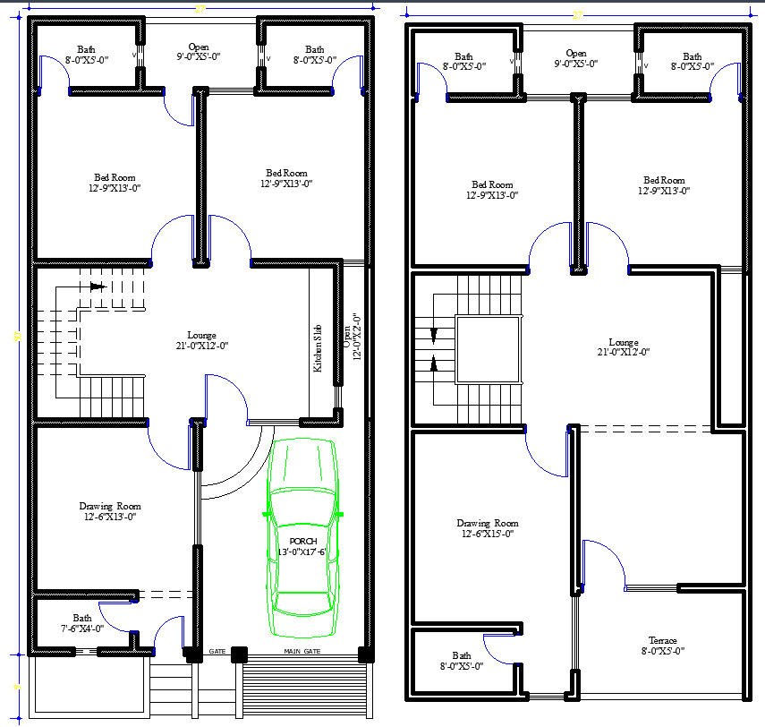
This AutoCAD DWG house plan features a complete two-floor residential layout designed with clear room dimensions and functional circulation. The ground floor includes two bedrooms sized 12 ft 9 in x 13 ft, each attached to bathrooms measuring 8 ft x 5 ft. The central lounge of 21 ft x 12 ft connects to a 12 ft 6 in x 13 ft drawing room, offering a spacious living arrangement. The porch, measuring 13 ft x 17 ft 6 in, provides convenient car parking at the front entrance. Additional elements include open ventilation spaces of 9 ft x 5 ft, a kitchen slab area, and a guest bath of 7 ft 6 in x 4 ft placed near the main gate.
The first floor repeats the functional layout with two bedrooms of 12 ft 9 in x 13 ft, attached bathrooms sized 8 ft x 5 ft, and an identical 21 ft x 12 ft lounge offering family seating space. A 12 ft 6 in x 15 ft drawing room and an 8 ft x 5 ft terrace extend the upper-level convenience. Staircases between floors are centrally positioned for efficient movement, and multiple open areas enhance natural ventilation throughout both levels. This DWG plan is ideal for architects, civil engineers, interior designers, builders, and CAD professionals seeking a clear, dimensioned residential layout for design, planning, or project execution.
Uploaded by:

