House Design DWG CAD Plan with Bedrooms Lounge Kitchen and Bath
Description
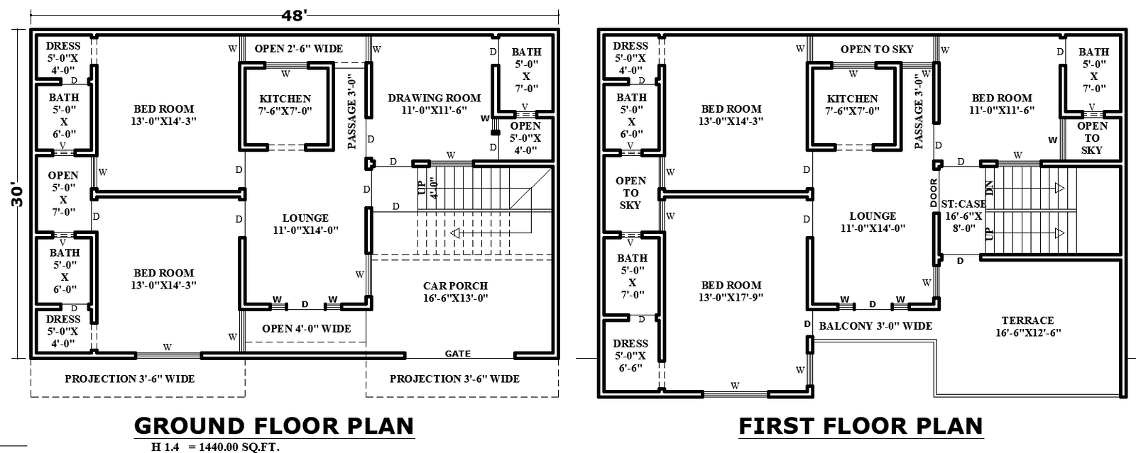
This residential DWG CAD file presents three distinct design options, each offering a practical arrangement of rooms, circulation spaces, and floor connections suitable for various plot sizes. The first proposal organizes its spaces with bedrooms measuring 13 ft x 14 ft 3 in, a compact 7 ft 6 in x 7 ft kitchen, and a well-sized 11 ft x 14 ft lounge supported by two bathrooms of 5 ft x 6 ft and 5 ft x 7 ft. It also includes a 16 ft 6 in x 13 ft car porch and an 11 ft x 11 ft 6 in drawing room, providing a functional layout for both living and visitor areas. The internal passages and stair placement are drafted to maintain smooth movement between rooms and floors.
The second and third proposals include larger spatial configurations, with bedrooms such as 13 ft 3 in x 14 ft 6 in, 13 ft x 13 ft 9 in, and 15 ft 6 in x 16 ft arranged around lounges, kitchens, and open-to-sky shafts. Kitchens range from 10 ft x 9 ft 3 in to 13 ft 3 in x 9 ft, while balconies sized up to 26 ft x 2 ft 9 in enhance ventilation and outdoor access. Lawn areas, 3 ft to 4 ft wide passages, and staircases up to 14 ft 3 in x 10 ft further define circulation clarity. Across all three options, the drawings demonstrate accurate residential zoning, practical proportions, and plot-fitting layouts ideal for reliable residential planning.

Uploaded by:
Jafania
Waxy

