Modular Kitchen CAD Plan with Utility and Cabinet Elevation Details

Modular Kitchen CAD Plan with Utility and Cabinet Elevation Details
Profile

Uploaded by:

Wang

Fang

Description

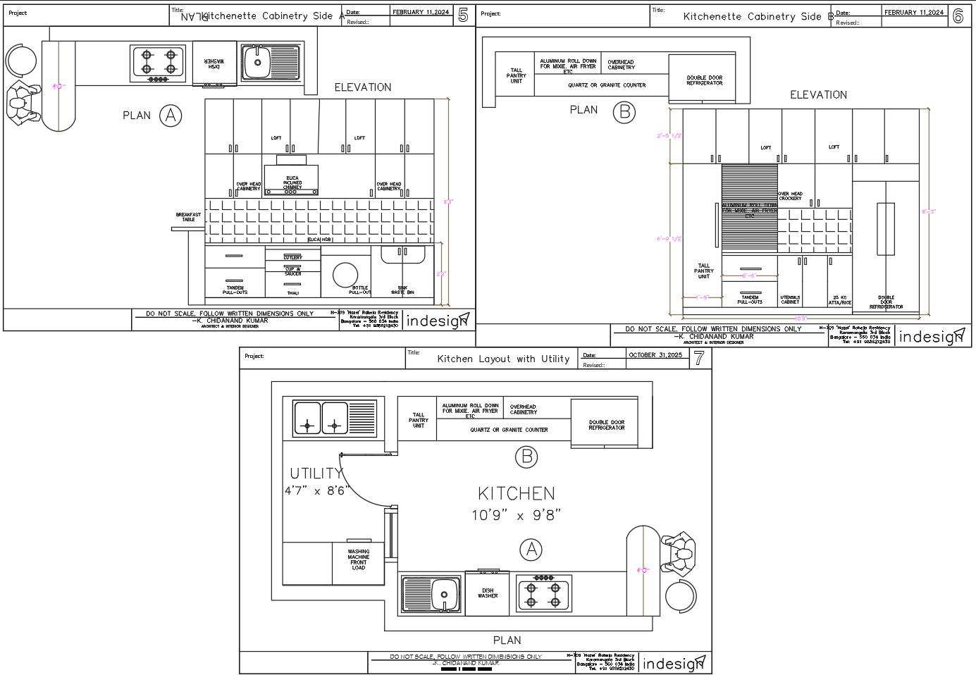
This AutoCAD DWG file offers a well-organized modular kitchen layout that includes precise measurements, appliance zones, and clearly defined cabinetry details. The kitchen plan features two layout options, each showing the placement of the sink, dishwasher, hob, chimney, refrigerator, and storage units within the 10'9" × 9'8" kitchen space. The attached utility room, measuring 4'7" × 8'6", is designed to accommodate a washing machine and additional work surfaces, creating a functional extension of the main kitchen. Every element, including pull-out drawers, counter surfaces, and pantry units, is labeled for ease of interpretation.

The drawing also includes detailed cabinet elevation views that illustrate the height alignment of overhead cabinets, tall storage units, and roll-down shutters used for organizing kitchen essentials. Measurements for each section are clearly indicated to support planning accuracy and installation coordination. The combination of plan and elevation drawings helps architects, interior designers, and builders visualize the complete modular setup and understand material and space requirements. 

Profile

Uploaded by:

Wang

Fang

find Latest

Related Files

WhatsApp Chat