Multi-Unit Residential Apartment AutoCAD DWG with Stilt Parking Plan

Multi-Unit Residential Apartment AutoCAD DWG with Stilt Parking Plan
Profile

Uploaded by:

Harriet

Burrows

Description

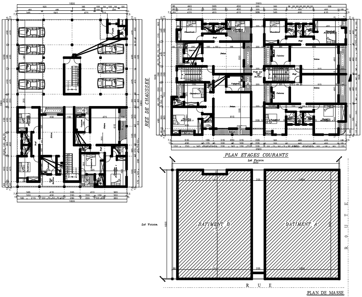
This architectural AutoCAD DWG showcases a fully dimensioned residential layout built on a 2800-wide site, with clearly marked 1835 structural spans and 1255 room divisions visible across the plan. The ground floor includes a well-organized parking zone featuring multiple car bays arranged with measurements such as 365, 545, 475, and 400, positioned around a centrally located staircase block that connects all floors. Additional interior details such as corridors, service areas, and room partitions are marked with precise values, including 205, 150, 6,15, and 320, ensuring accuracy for planning and execution.

The upper floor plan continues this structured layout with labelled chambres, buanderie spaces, balconies,ies and shared circulation pathways aligned on 400 and 415 grid lines. Each measurement contributes to a clear understanding of the building’s multi-unit configuration, making this DWG highly useful for architects, civil engineers, interior designers, builders, and CAD users working in AutoCAD, Revit, 3DMaxa, or SketchUp. A cadbull subscription provides access to thousands of similar measured architectural drawings, helping professionals complete residential projects with speed and precision.

Profile

Uploaded by:

Harriet

Burrows

find Latest

Related Files

WhatsApp Chat