40 Foot House Plan DWG with Bedrooms Courtyard and Detailed Layout
Description
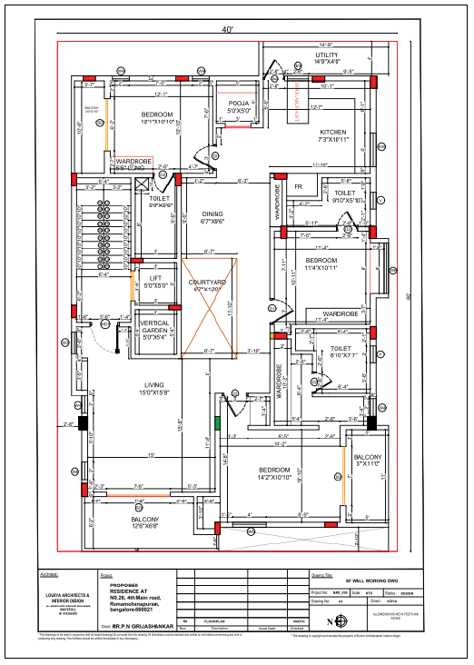
This house plan DWG file displays a complete architectural layout of a 40-foot-wide residence, showing accurately labeled spaces and detailed room dimensions. The drawing includes four bedrooms with sizes such as 12’1”x10’10”, 11’4”x10’11”, and 14’2”x10’10”, along with attached toilets measuring 5’0”x9’6”, 9’10”x5’10”, and 8’10”x7’7”. Central to the layout is a courtyard measured at 6’7”x12’0”, providing natural light to adjoining areas. Other key spaces include a 15’0”x15’8” living room, a dining room sized 6’7”x9’6”, a kitchen of 7’3”x10’11”, a pooja room at 5’0”x5’0”, and a utility area of 14’9”x4’0”. Additional planning elements include a lift, vertical garden, wardrobes, balconies measuring 12’6”x6’6” and 5’x11’10”, and clearly marked circulation paths.
This DWG layout also includes wall thickness markings, door swing annotations, ventilation shafts, and structural references for precise interpretation. The plan provides a clear overview of spatial organization suitable for architects, designers, and civil engineers who require a complete residential floor plan for documentation or design development. The drawing offers a well-structured reference for planning electrical routing, interior detailing, and construction layout adjustments during project execution.

Uploaded by:
Jafania
Waxy

