Ground Floor Architectural House Plan DWG with Full Dimension Layout
Description
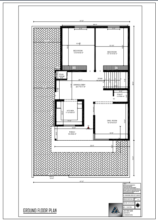
This DWG file represents a Ground Floor Architectural House Plan (Dimensioned Layout) designed with detailed measurements and clear spatial planning. The drawing includes two bedrooms measuring 13'9"×16'0" and 13'0"×16'0", a kitchen sized 11'0"×10'0", a puja room of 6'0"×6'0", and a dining lobby of 20'7"×11'9". The attached toilet is shown at 6'0"×5'0", positioned next to the staircase block for efficient circulation. A front porch area measuring 16'6"×6'0" is clearly marked, along with site setbacks and paving patterns. Wall thicknesses, door openings, window placements, and direction references are fully dimensioned to support construction accuracy.
The layout follows standard architectural drafting conventions, making it suitable for planning approvals, working drawings, and residential project development. The drawing clearly illustrates movement paths, room connectivity, and functional zoning across the ground level. Professionals such as architects, civil engineers, interior designers, and CAD technicians can use this plan to understand design intent, space usage, and structural relationships. This architectural ground floor plan is ideal for modeling, design refinement, and execution stages of residential construction projects.

Uploaded by:
Harriet
Burrows

