Residential Single Floor Bungalow Plan with Elevation and RCC Details
Description
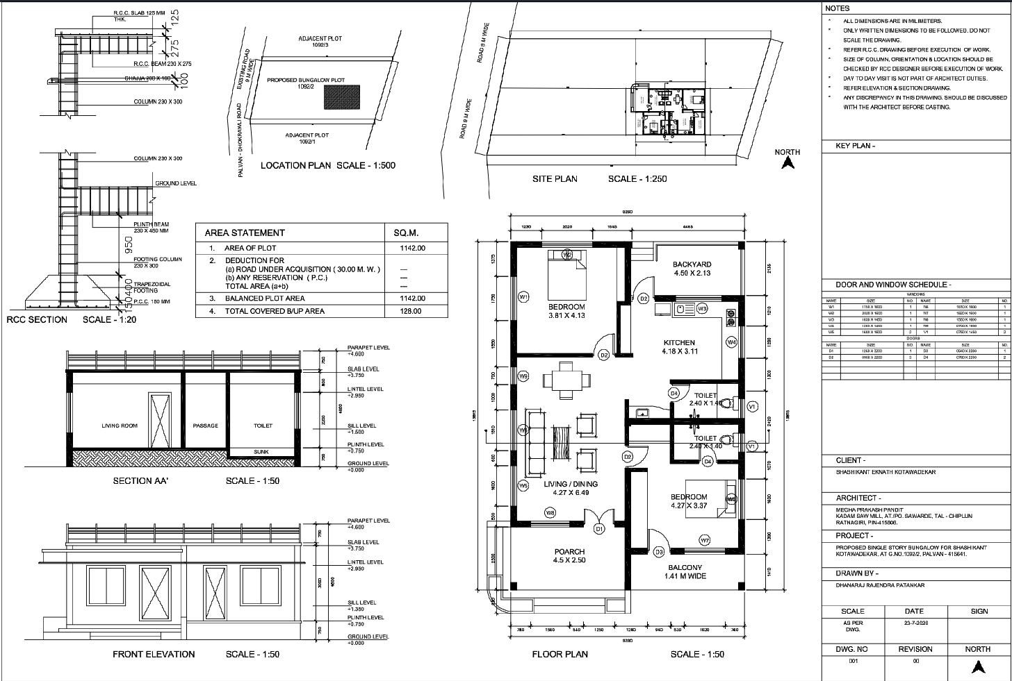
This residential single-floor bungalow drawing provides a complete architectural layout designed for accurate planning and efficient construction. The floor plan includes full measurements for all major spaces, such as the 4.27×6.49 living and dining area, 4.18×3.11 kitchen, 4.27×3.37 bedroom, 3.81×4.13 bedroom, dual 2.40×1.40 toilets, a 4.50×2.50 porch, 4.50×2.13 backyard, and a 1.41 m balcony. The elevation drawing clearly shows façade proportions, sill level, lintel level, slab level, parapet height, and front design elements for clear visualization. The detailed section AA’ helps builders understand vertical alignment, floor height, and structural transitions across the building.
The RCC structural sheet includes footing sizes, plinth beam details, slab thickness, reinforcement notes, and column dimensions needed for safe and accurate construction. A complete door and window schedule is also provided, listing all opening types W1 to W9 and D1 to D4 with exact measurements to support correct fabrication and installation. The included site plan and location map highlight road access, plot orientation, boundary lines, and surrounding references. This comprehensive residential drawing set is ideal for architects, civil engineers, interior designers, and builders who require a clear and professionally drafted plan for execution, approval, and detailed design work.
Uploaded by:
viddhi
chajjed

