Reinforced Column and Beam Structural Layout with KP Details
Description
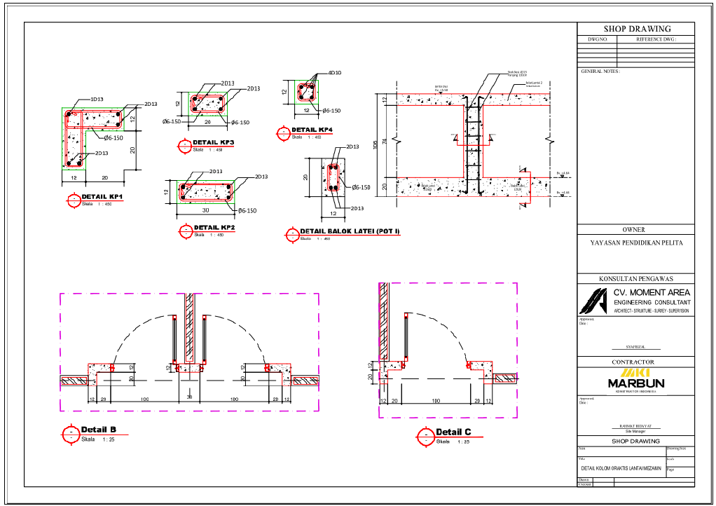
This reinforcement layout provides a complete structural detailing set featuring KP1, KP2, KP3, and KP4 configurations for accurate column and beam construction. Each section includes clearly defined dimensions, such as 12 cm, 20 cm, and 30 cm beam components, Ø6-150 stirrups, and longitudinal reinforcement using D13 bars. The drawing also highlights the POT I beam latei detail positioned at elevation +4.44 to +5.50, supported by 4D10 bars and 2D13 reinforcement on both top and bottom layers. The 12 cm slab thickness is precisely marked, ensuring proper load distribution and dependable structural integrity across floors.
Additional measurements include 100 mm and 74 mm beam zones, corner reinforcement bends, and anchorage lengths that guide contractors during steel placement and formwork preparation. The KP1–KP4 reinforcement details demonstrate clear arrangements of ties, bar spacing, and corner bar positioning, supporting consistent construction practices. Each structural component is labelled with exact dimensions, making this layout ideal for architects, civil engineers, structural designers, and site supervisors seeking high-accuracy execution. This drawing ensures precision during installation, reduces onsite errors, and enhances overall project reliability.
Uploaded by:
Priyanka
Patel

