Long Rectangular Building Floor Layout DWG with Detailed Dimensions
Description
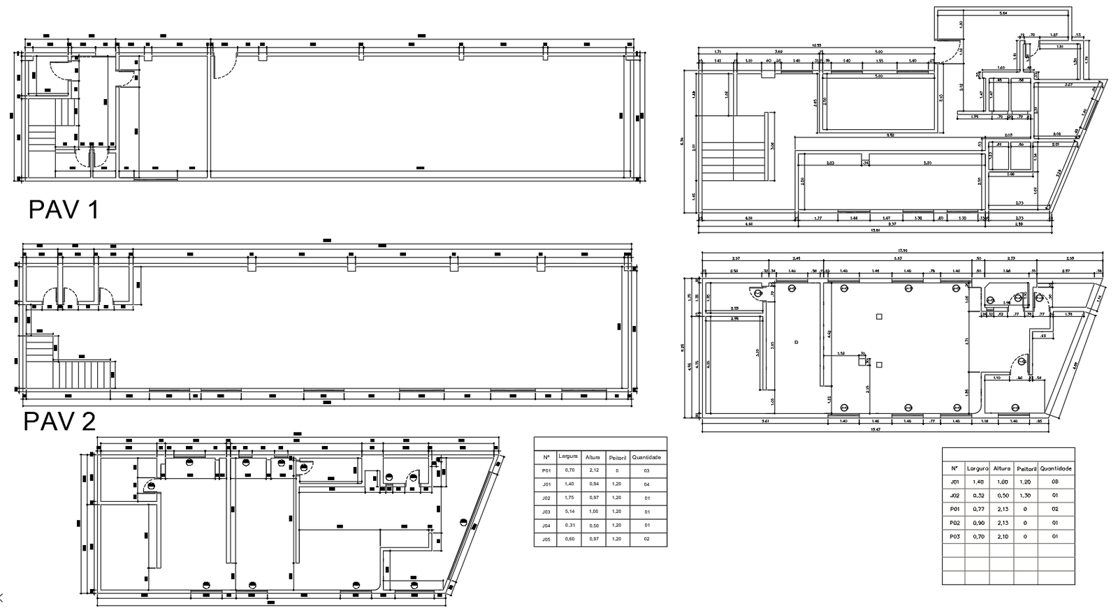
This AutoCAD DWG file presents a detailed, long rectangular building floor layout developed with clear dimensional planning and construction level accuracy. The drawing illustrates a linear building configuration with continuous wall alignment, evenly spaced structural segments, and clearly defined internal partitions. Precise measurements are provided throughout the plan, supporting an accurate understanding of lengthwise space distribution and usable internal areas. Door and window locations are systematically arranged, and opening schedules include width, height, sill level, and quantity, helping professionals evaluate ventilation, lighting, and access requirements. The layout is suitable for functional structures such as commercial units, service buildings, institutional blocks, or utility facilities where elongated planning is required for efficiency and circulation control.
This DWG layout is valuable for architects, civil engineers, interior designers, and builders seeking dependable reference drawings for planning and execution. The clear dimensional annotations and organized drafting style reduce interpretation errors during construction and coordination stages. The drawing supports smooth workflow integration with AutoCAD and can be adapted for Revit modeling, 3ds Max visualization, or SketchUp conceptual studies. By accessing this file through a subscription, professionals can significantly reduce drafting time, reuse proven dimensional planning, and maintain consistency across multiple projects while meeting practical design and construction standards.

Uploaded by:
Wang
Fang

