Warehouse Gable End Wall and Rafter Structural DWG Design file

Warehouse Gable End Wall and Rafter Structural DWG Design file
Profile

Uploaded by:

john

kelly

Description

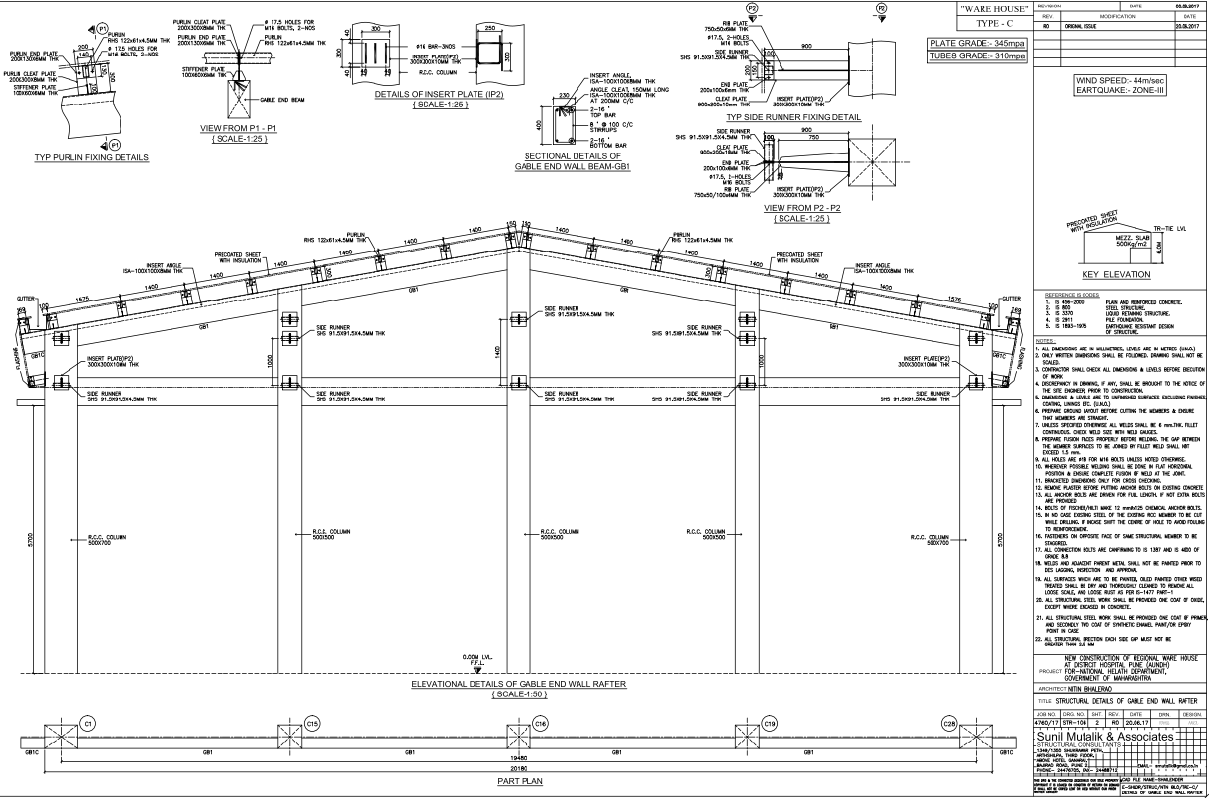
 This AutoCAD DWG file presents detailed warehouse structural drawings focusing on gable end wall and rafter elevation layouts. The drawing clearly illustrates RCC columns sized 500x500 mm, steel side runners, gable beams, and roof rafter arrangements with precise centerline spacing and height levels. The elevation details show purlin fixing connections, insert plate dimensions, runner fixing details, and gutter alignment along the roof slope. Each structural member is dimensioned accurately, including bay spacing, column heights, and roof pitch, making the drawing suitable for industrial warehouse planning and execution. The file includes sectional references and part plans that help in understanding load transfer and structural continuity.

The structural layout also covers connection details such as base plates, anchor bolt positions, side runner junctions, and gable end beam supports. Notes specify material grades, wind load consideration, and construction tolerances for warehouse-type steel and RCC structures. This DWG drawing supports coordination between architectural and structural elements, allowing professionals to review elevation proportions, framing logic, and fixing methodology before execution. The drawing is ideal for structural planning, detailing, and coordination in warehouse projects where accuracy in rafter alignment, wall height, and structural spacing is critical.

Profile

Uploaded by:

john

kelly

find Latest

Related Files

WhatsApp Chat