Office Floor Plan Layout With Workstations, Meeting, and Director Room
Description
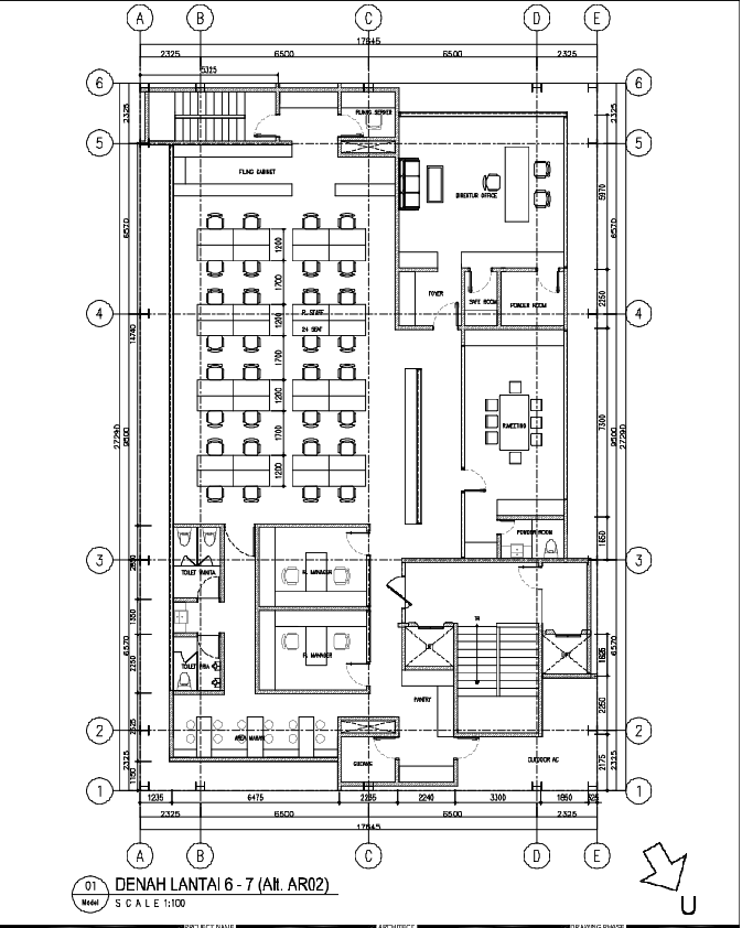
This AutoCAD DWG drawing presents a detailed office floor plan layout designed for professional workplace use. The plan shows a structured arrangement of open workstations with multiple seating layouts, including rows of desks marked for twenty-four seats, manager cabins, and a director's office positioned for privacy. The overall building grid is clearly defined with column references from A to E and 1 to 6, along with precise internal dimensions such as overall width of approximately 17445 mm and segmented bay widths of 6500 mm and 2325 mm. Circulation paths, entry lobby, stair core, and vertical movement areas are clearly marked for functional planning.
The drawing also includes dedicated spaces such as a meeting room, a safe room, a pantry, a powder room, toilets for gents and ladies, a server or filing cabinet area, and a reception foyer. Staircase width, landing positions, and lift or shaft locations are clearly shown to support vertical circulation. Wall thicknesses, door swings, furniture layouts, and room zoning are accurately detailed to assist architects, civil engineers, and interior designers during planning and execution. This office layout DWG is suitable for administrative buildings, corporate offices, and institutional projects requiring precise spatial coordination and CAD-based documentation.
File Type:
DWG
File Size:
395 KB
Category::
Interior Design
Sub Category::
Corporate Office Interior
type:
Gold

Uploaded by:
john
kelly

