Residential Ground Floor Architectural Grid Plan Drawing 5666 Sqft

Residential Ground Floor Architectural Grid Plan Drawing 5666 Sqft
Profile

Uploaded by:

Harriet

Burrows

Description

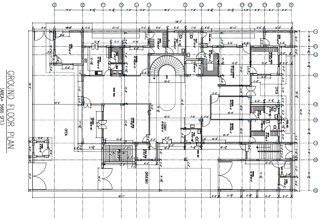
This AutoCAD DWG file presents a detailed residential ground-floor architectural grid plan with a total built-up area of 5666 square feet. The drawing clearly defines the complete ground floor layout, including lobby, living areas, bedrooms, kitchen, toilets, staircase core, driveway, and open spaces. Accurate grid lines, center line references, and room-wise internal dimensions are marked throughout the plan to support precise architectural and structural coordination. Door swings, wall thicknesses, passage widths, and circulation paths are clearly shown to ensure functional space planning. The layout includes a centrally placed curved staircase with dimensional control, connected corridors, and defined entry access points. All dimensions are provided in feet and inches, supporting direct use for site execution and CAD-based planning workflows.

This architectural grid plan drawing is prepared for professional use and supports coordination with structural, electrical, and mechanical drawings. Column grid alignment, open courtyard zones, and driveway access are clearly indicated to maintain construction accuracy. The drawing is suitable for G plus 2 floor residential development planning and can be efficiently used by architects, civil engineers, builders, and CAD professionals working in AutoCAD, Revit, 3ds Max, and SketchUp environments. This AutoCAD DWG file provides a reliable base drawing for residential design development, approvals, and execution level documentation.

Profile

Uploaded by:

Harriet

Burrows

find Latest

Related Files

WhatsApp Chat