Residential Apartment Floor Plan With Furniture Layout AutoCAD
Description
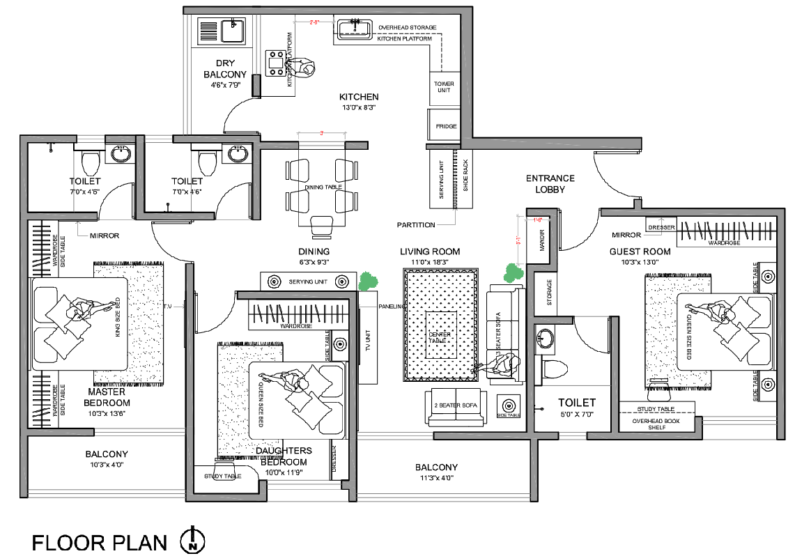
This AutoCAD DWG file presents a detailed residential layout drawing created for architectural planning and execution reference. The drawing explains overall space organization, internal circulation, and zoning with clearly marked wall positions and accurate dimensions. Entry access, balconies, internal passages, and service areas are arranged logically to support functional residential use. The layout is suitable for professional planning work under Apartment Drawing, helping architects and planners understand spatial hierarchy and layout flow within a residential setup. Drafting clarity and consistent dimensioning make the drawing reliable for approval submissions and layout coordination. It also supports planning requirements commonly associated with Residential Building projects where accuracy and readability are essential.
The drawing further assists in coordinating layout decisions during construction stages by maintaining clear annotations and standardized drafting practices. Furniture reference blocks are included only to indicate scale and circulation movement, without adding decorative intent. This layout is also useful for planning workflows related to House Plan, allowing a smooth transition from design to site execution. Clear dimensioning supports layout marking, partition alignment, and on-site coordination. As part of Architecture Drawing documentation, the DWG file can be reused or adapted for similar residential layouts while maintaining dimensional accuracy and planning consistency.

Uploaded by:
john
kelly

