Reflective Ceiling Layout Ground Floor Residence AutoCAD DWG Drawing
Description
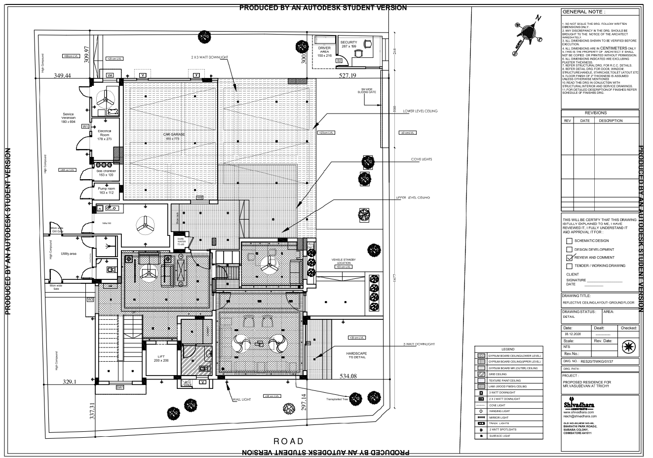
This AutoCAD DWG file presents a complete reflective ceiling layout for the ground floor of a residential building, precisely drafted with written dimensions in centimeters. The drawing clearly illustrates multiple ceiling treatments, including gypsum board upper and lower level ceilings, grid ceilings, wood finish ceiling panels, and textured paint ceiling areas. It shows accurate placement of lighting fixtures such as 3-watt downlights, 2 x 3-watt downlights, cove lights, wall lights, mirror lights, hanging lights, track lights, and surface lights. Ceiling level references such as plus 23 cm, plus 38 cm, and plus 68 cm levels are clearly marked for execution accuracy. Spaces covered include a car garage 610 x 773 cm, a driver area 150 x 216 cm, a service verandah 180 x 694 cm, an electrical room 178 x 273 cm, utility areas, a lift lobby 200 x 200 cm, a pump room 163 x 112 cm, and other functional residential zones.
This reflective ceiling layout drawing is ideal for architects, interior designers, and civil engineers looking for professional residential ceiling planning. The DWG file helps in coordination between architectural, interior, and electrical services by offering exact fixture locations, ceiling heights, and material indications. Builders and contractors can rely on this layout for on-site execution without scaling errors, as all measurements are clearly written.

Uploaded by:
Jafania
Waxy
