Private Villa Ground Floor Plan with Elevation Sections and RCC
Description
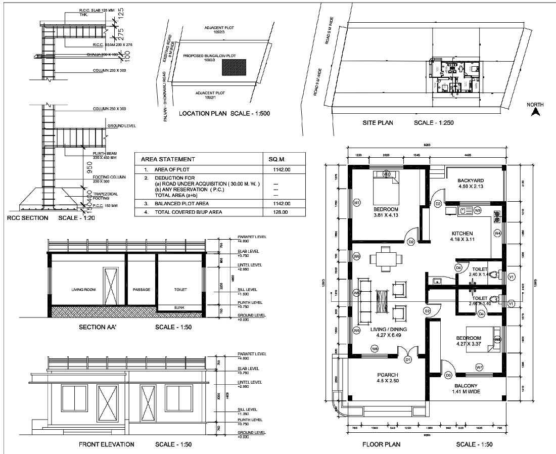
This AutoCAD DWG drawing presents a private villa architectural layout with complete ground floor planning and construction information. The drawing includes a detailed floor plan showing living, dining, 4.27 x 6.49 m, bedroom, 4.27 x 3.37 m and 3.81 x 4.13 m, kitchen, 4.18 x 3.11 m, toilet, 2.40 x 1.40 m, porch 4.5 x 2.50 m, balcony 1.41 m wide, and backyard 4.50 x 2.13 m. Site plan at scale 1:250, location plan at scale 1:500, and area statement with total plot area 1142.00 sq m and built-up area 128.00 sq m are provided. RCC section details include footing, plinth beam 230 x 450 mm, columns 230 x 300 mm, RCC slab 125 mm thick, lintel, sill, and parapet levels.
Front elevation and section AA are drawn at scale 1:50. Door and window schedule lists precise sizes, such as the main door 1250 x 2200 mm and multiple window types up to 2020 x 1600 mm. This private villa ground floor plan drawing is suitable for architectural planning, residential construction detailing, and CAD documentation use.

Uploaded by:
Harriet
Burrows

