Residential Building Floor Plans With Site Layout And Front Elevation
Description
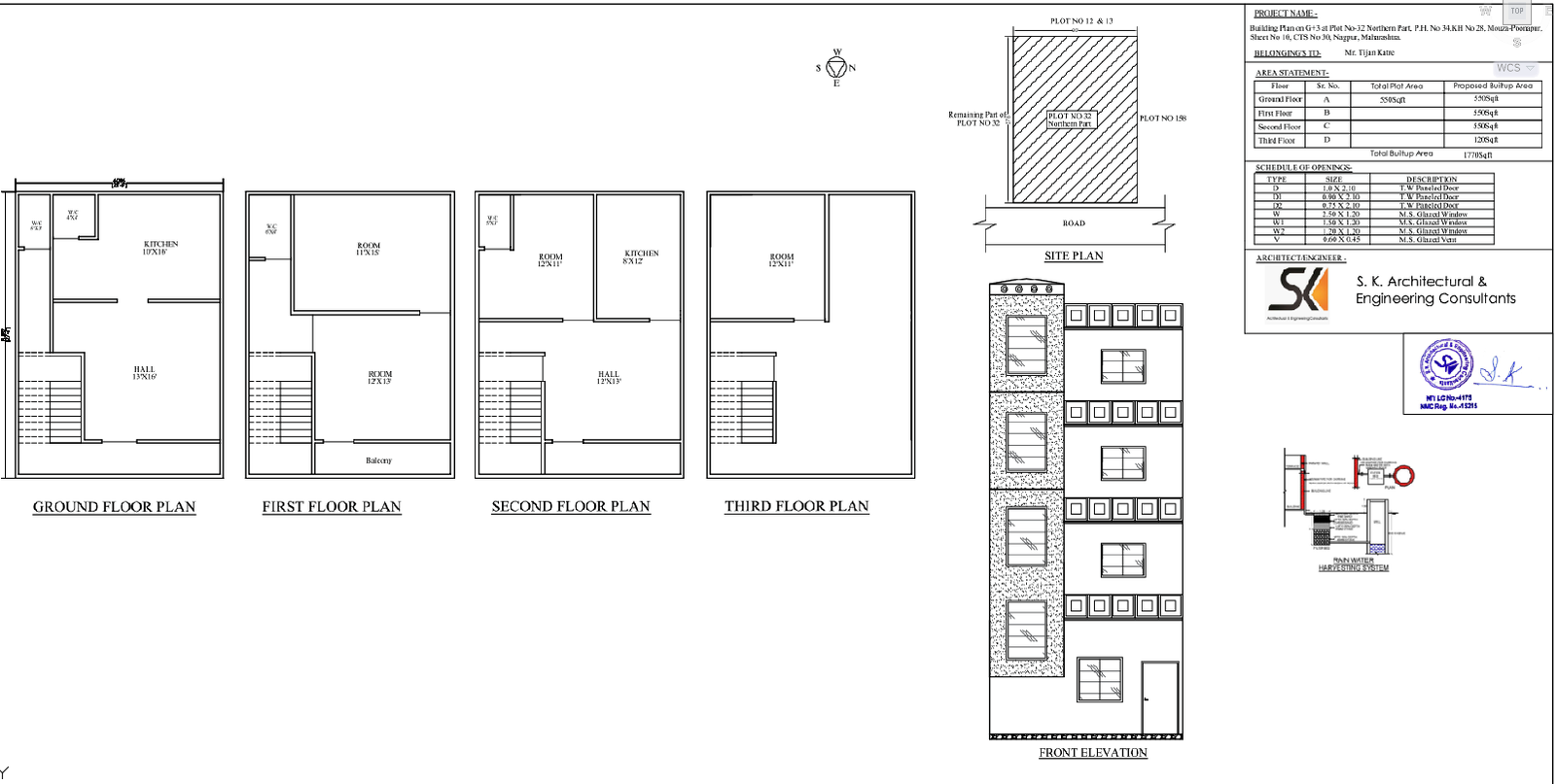
This AutoCAD DWG file presents detailed residential building drawings, including ground floor, first floor, second floor, and third floor plans with clear room dimensions. The drawing shows functional layouts with kitchen, hall, rooms, toilets, staircase placement, and balcony arrangement, where applicable. A complete site plan with plot orientation and road access is included for accurate positioning.
The front elevation illustrates façade proportions, window alignment, and entrance detailing. Area statements define the built-up area for each floor and the total construction area, supporting planning and approval requirements. Door and window schedules specify sizes and types for construction reference. This residential building drawing is suitable for architectural planning, estimation, and execution.

Uploaded by:
john
kelly

