Boundary Wall Drainage Opening Detail Drawing With RCC Dimensions

Boundary Wall Drainage Opening Detail Drawing With RCC Dimensions
Profile

Uploaded by:

Jafania

Waxy

Description

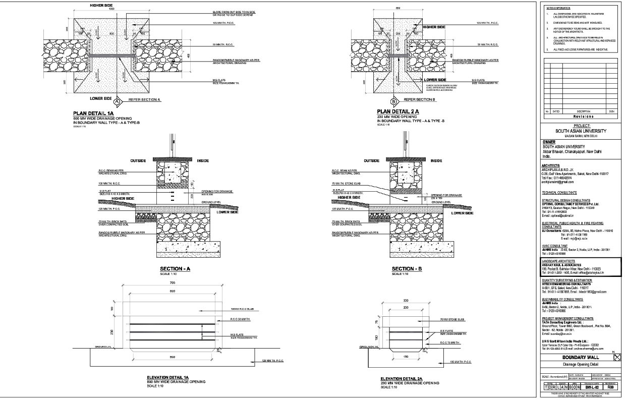
This AutoCAD DWG file presents a boundary wall drainage opening detail drawing prepared with precise construction measurements and execution level clarity. The drawing illustrates drainage openings of 230 mm and 600 mm widths, clearly coordinated within boundary wall Type A and Type B conditions. Structural build-up includes a 75 mm stone slab, 50 mm and 75 mm thick RCC layers, and a 125 mm thick PCC over compacted soil. Mild steel flats sized 700 x 40 x 6 mm and 280 x 40 x 6 mm are specified for structural reinforcement at drainage openings. Plan details and elevation details are provided at scale 1:10, allowing accurate interpretation of opening widths, slab thicknesses, and alignment with ground level references.

The drawing further includes Section A and Section B, explaining inside and outside level differences, slope direction, and water flow movement from the higher side to the lower side. Drainage openings such as 600 x 230 mm and 230 x 150 mm are clearly marked, supported by RCC beams as per architectural drawings and random rubble masonry construction. Brick bat layers of 75 mm thickness, RCC slab thickness of 100 mm, and PCC bedding are detailed to support durability and site execution. All dimensions are indicated in millimeters and are to be read, not scaled, ensuring construction accuracy. This DWG file is suitable for architects, civil engineers, builders, and design professionals working with AutoCAD, Revit, 3D Max, and SketchUp for boundary wall detailing, drainage coordination, and technical documentation.

Profile

Uploaded by:

Jafania

Waxy

find Latest

Related Files

WhatsApp Chat