Residential Ground Floor Layout Plan With Room Dimensions and Road

Residential Ground Floor Layout Plan With Room Dimensions and Road
Profile

Uploaded by:

john

kelly

Description

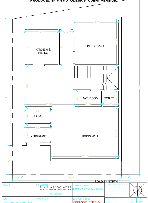
This AutoCAD DWG drawing presents a clear and practical residential ground floor layout plan designed on a 30-foot by 45-foot plot with road access from the north side. The plan defines a well-organized internal arrangement, including a living hall measuring approximately 17 feet 11 inches by 12 feet 0 inches, providing a spacious common area near the main entry. A combined kitchen and dining space is planned with dimensions around 8 feet 6 inches by 9 feet 0 inches, ensuring functional cooking and dining circulation. Bedroom 1 is laid out with a size of about 11 feet 3 inches by 10 feet 0 inches, offering comfortable accommodation. Bathroom and toilet spaces are clearly separated with sizes approximately 6 feet 10 inches by 4 feet 0 inches and 4 feet 0 inches by 4 feet 0 inches, supporting efficient daily use. A dedicated puja space and verandah are also included, enhancing traditional and transitional spatial needs.

The drawing clearly marks wall offsets, door openings, stair positioning, and circulation paths for smooth movement throughout the floor. Verandah width and front setback dimensions are shown to coordinate entry planning. All dimensions are provided in feet and inches and are intended to be followed as written for construction accuracy. Road width, plot boundaries, and orientation notes help in site-level coordination. This ground-floor layout drawing is suitable for architects, civil engineers, interior designers, and builders who require an accurate residential plan with room sizes, spatial zoning, and clear dimensional references for design development and execution.

Profile

Uploaded by:

john

kelly

find Latest

Related Files

WhatsApp Chat