Typical Residential Floor Plan With Multiple Flats And Corridor Layout
Description
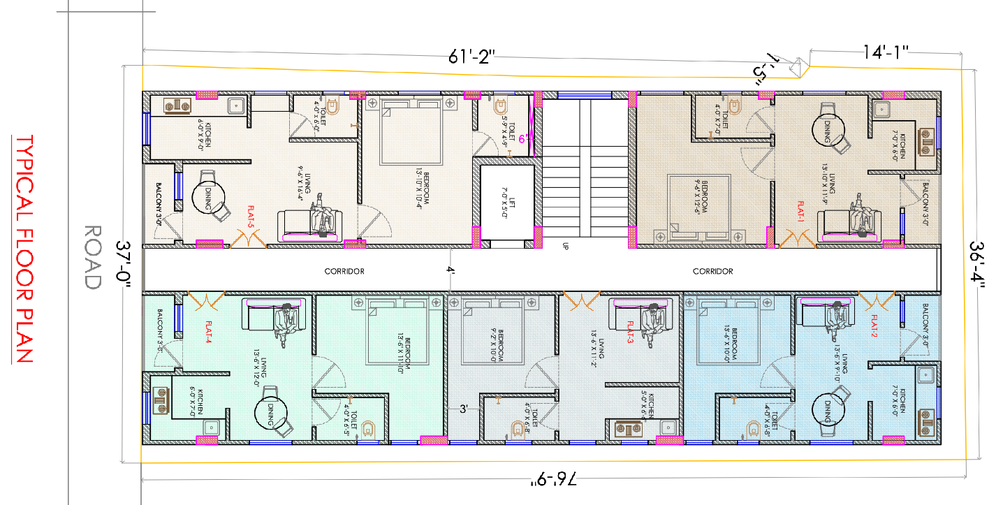
This AutoCAD DWG drawing shows a detailed, typical floor plan of a residential apartment building designed with multiple flats arranged along a central corridor. The overall building dimensions are approximately 61 feet 2 inches in length and 37 feet 0 inches in width, with road access provided along one side. The layout includes five residential units labeled Flat 1 to Flat 5, each planned with clearly defined living, dining, bedroom, kitchen, toilet, and balcony spaces. Living rooms vary in size, such as 13 feet 6 inches by 12 feet 0 inches, 13 feet 10 inches by 11 feet 9 inches, and 9 feet 6 inches by 16 feet 4 inches, offering different unit configurations on the same floor. Kitchens are compact and efficient, with sizes including 6 feet 0 inches by 9 feet 0 inches, 7 feet 0 inches by 6 feet 0 inches, and 5 feet 0 inches by 6 feet 6 inches. Toilets are provided with dimensions such as 4 feet 0 inches by 6 feet 0 inches and 4 feet 0 inches by 7 feet 0 inches.
The plan also includes a centrally located lift measuring approximately 7 feet 0 inches by 5 feet 0 inches and a staircase core for vertical circulation. A 4-foot-wide corridor connects all residential units, ensuring clear access and movement. Balconies of 3 feet 0 inches in width are attached to living areas, supporting ventilation and daylight. All dimensions are provided in feet and inches and are intended to be followed as written for construction accuracy. This typical floor plan is suitable for architects, civil engineers, interior designers, and builders involved in apartment planning, coordination, and execution.

Uploaded by:
Jafania
Waxy

