Level 3 Culinary Training Kitchen Sections With Tile Setting Out

Level 3 Culinary Training Kitchen Sections With Tile Setting Out
Profile

Uploaded by:

Jafania

Waxy

Description

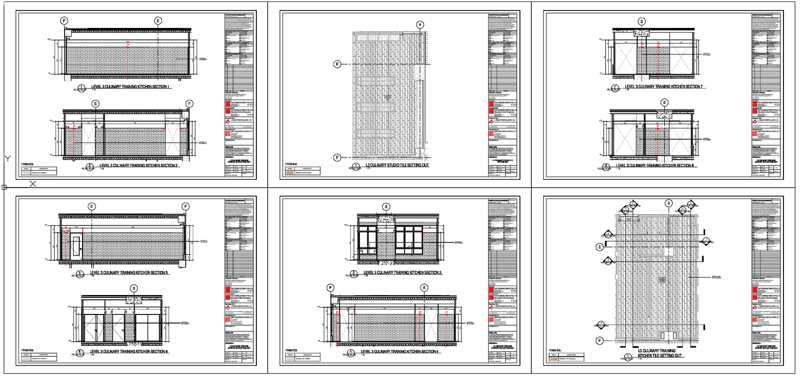
This AutoCAD drawing illustrates detailed Level 3 culinary training kitchen section views, along with tile setting out information prepared for professional architectural and construction use. The sheet includes multiple sectional drawings labeled Section 1 to Section 8, clearly showing wall buildup, brick patterns, finishes, window positions, door openings, lintel levels, slab thicknesses, and ceiling details. Horizontal and vertical dimensions are accurately marked to support execution, including floor to lintel heights, sill levels, parapet alignment, and structural junctions. The kitchen sections present consistent layout coordination with clear references between grid lines and section markers for site clarity.

In addition, the drawing provides a comprehensive tile setting out plan for the culinary training kitchen, indicating tile orientation, layout alignment, edge conditions, and finishing references. Measurements are shown to guide precise placement, reducing on-site errors during execution. Window elevations with framing details and sectional cuts through service walls enhance understanding of internal spatial planning. This AutoCAD DWG file is suitable for architects, civil engineers, interior designers, and builders who require accurate sectional coordination, finish detailing, and tile layout reference for institutional kitchen projects.

Profile

Uploaded by:

Jafania

Waxy

find Latest

Related Files

WhatsApp Chat