Mail Room Base Cabinet Shelf Detail Drawing With Full Dimensions

Mail Room Base Cabinet Shelf Detail Drawing With Full Dimensions
Profile

Uploaded by:

john

kelly

Description

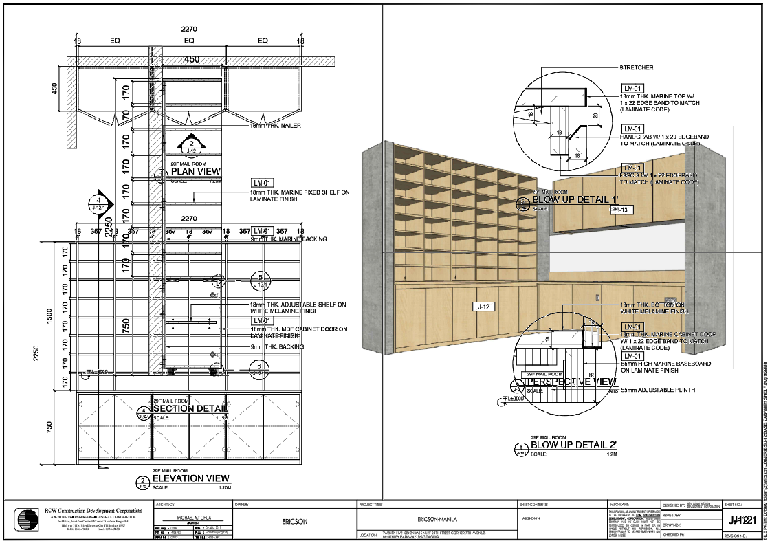
This AutoCAD drawing presents a detailed mail room base cabinet with shelf design prepared with accurate dimensions and joinery specifications. The drawing includes plan view, elevation view, and section detail for a cabinet unit measuring 2270 mm in overall width and 2250 mm in total height with a base cabinet height of 750 mm and upper shelving zone of 1500 mm. Individual shelf modules are spaced at 170 mm intervals with equal divisions of 357 mm along the width. The cabinet depth is clearly shown as 450 mm, supported by an 18 mm thick marine top and 18 mm thick marine fixed shelves finished in laminate. Adjustable shelves are detailed using a white melamine finish with 9 mm thick marine backing and an 18 mm thick nailer for wall fixing.

The drawing also includes blow-up details highlighting joinery elements such as 18 mm thick marine cabinet doors with edge banding, 55 mm high marine baseboard, and 55 mm adjustable plinth. Section details show material layering, fixing methods, and shelf support alignment from the finished floor level. Perspective view provides a clear understanding of the cabinet layout with open pigeonhole-style compartments above and closed storage below. This AutoCAD DWG file is useful for architects, interior designers, and builders for accurate furniture detailing, shop drawings, and site execution reference.

Profile

Uploaded by:

john

kelly

find Latest

Related Files

WhatsApp Chat