LOGIN
HOME
CATEGORIES
UPLOAD FILE
PRICING
HOUSE PLAN
ABOUT US
CONTACT US
Swimming Pool Project detail
Home
Categories
Architecture
Sports Center
Swimming Pool Project detail
Uploaded by:
Manu-El
Ndala
View Profile
View Profile
Description
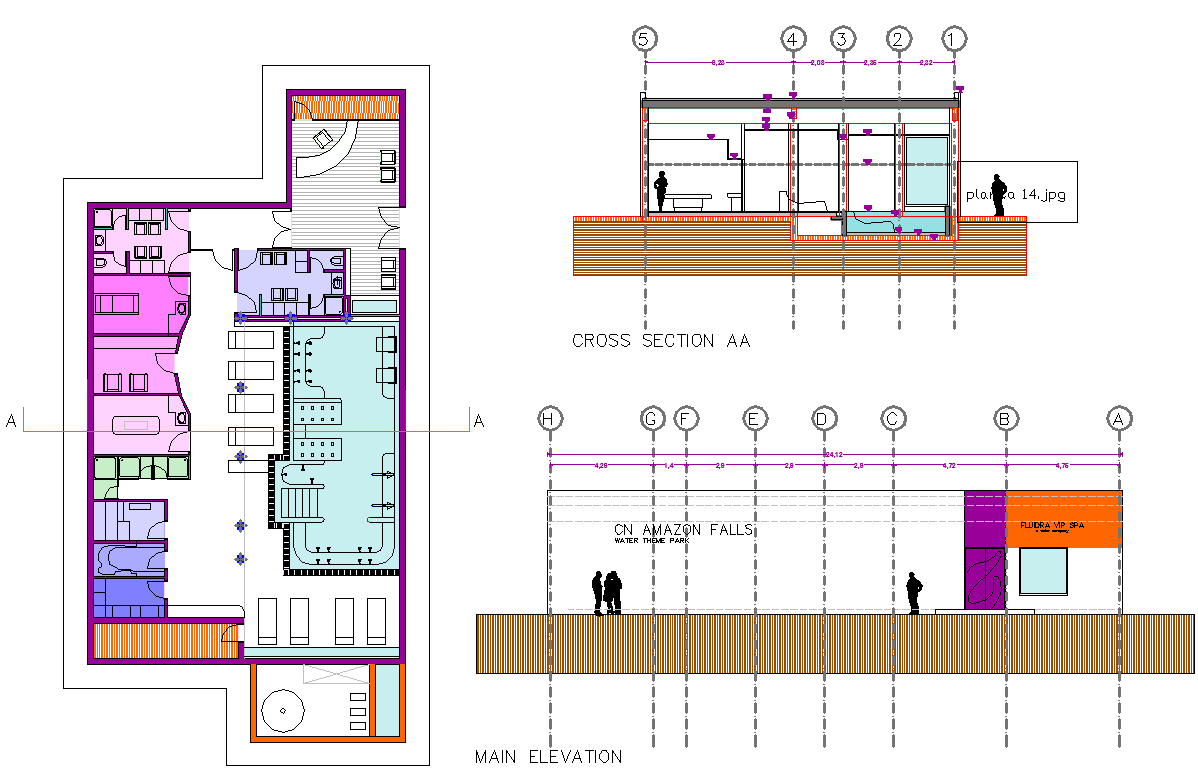
Swimming Pool Project detail dwg file. Find here layout plan along with furniture detail, section plan and elevation design of Swimming Pool Project.
File Type:
DWG
File Size:
140 KB
Category::
Architecture
Sub Category::
Sports Center
type:
Gold
Uploaded by:
Manu-El
Ndala
View Profile
Download
Add to libary
find Latest
Related
Files