Commercial building design view with plan and elevation view dwg file
Description
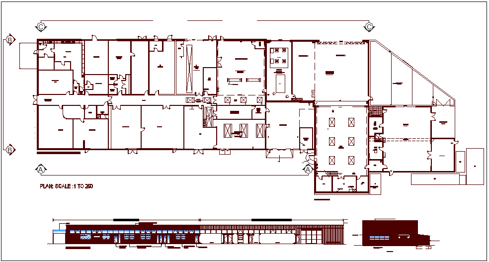
Commercial building design view with plan and elevation view dwg file with view of plan and elevation view of building with view of entry way,security cabin,washing area,
saloon room,manager office,motor workshop,store and door and view in elevation.
Uploaded by:

