Cadet college building plan design view with concrete detail dwg file
Description
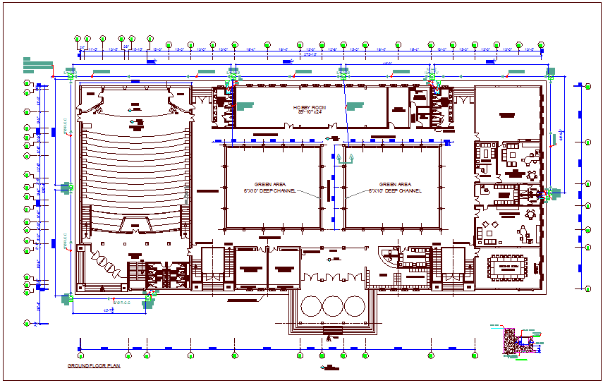
Cadet college building plan design view with concrete detail dwg file with view of college view with necessary dimension and view of entry way, principal room,staff room,washing area for male and female,admin office,auditorium,green area view and
view of hobby room and beam view with concrete detail.
Uploaded by:

