Church Architecture Design and Plan dwg file

Church Architecture Design and Plan dwg file
Profile

Uploaded by:

Vaishali

Description
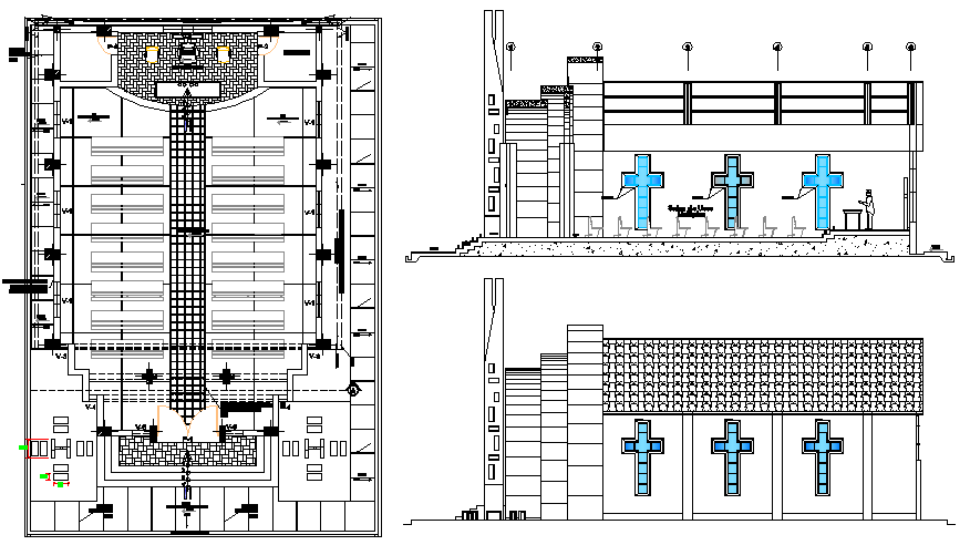
Church Architecture Design and Plan dwg file . Church Architecture Design and Plan that includes front and back elevations, side view, wall construction, elevation plan, walking path, entry lobby, prayer hall with chair, hall of uses, garden area and much more of church design.
Profile

Uploaded by:

Vaishali

find Latest

Related Files

WhatsApp Chat