Residential Building Front Elevation with Floor Section Layout CAD
Description
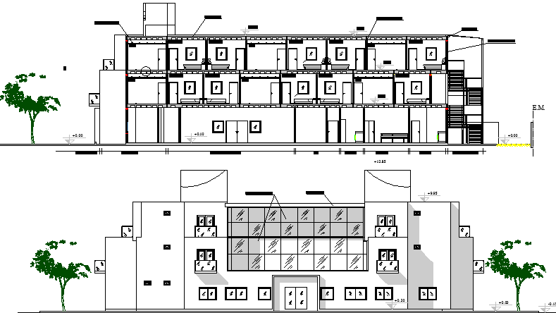
This AutoCAD DWG file includes detailed structural drawings prepared for building construction reference. The drawing set supports Beam and Lintel representation by clearly showing horizontal structural members, lintel placement above openings, and their alignment with wall sections. Beam positioning and connection points are visible to help understand load transfer across the structure. The drawing also explains Column Details Drawing with clearly marked column locations, alignment across floors, and connection with beams and slabs, helping professionals understand the structural grid and vertical load distribution.
The drawing further includes Footing Detail, showing the base support system with clear footing size, depth reference, and connection between column and foundation level. This helps in understanding ground load transfer and foundation planning. In addition, Section Plan CAD Blocks & DWG Drawing Models are provided to explain vertical cut sections of the building, showing slab thickness, floor levels, staircase continuity, and internal height relationships. All elements are drafted with clean CAD line work, readable dimensions, and proper scaling. This AutoCAD DWG file is useful for architects, civil engineers, and construction professionals who require accurate structural drawings for beam layout, column positioning, footing understanding, and section based construction coordination.
Uploaded by:

