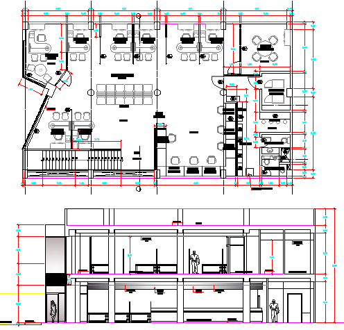
The Architecture Layout of Bank Branch Elevation dwg file
Description
The Architecture Layout of Bank Branch Elevation dwg file.
The Architecture Layout of Bank Branch Elevation that includes road map, entry gate, garden, door and window elevation, wall construction, section details including reception area, cash counter, work counters and much more of bank design.
Uploaded by:

