Hotel Design and Elevation Plan dwg file
Description
Hotel Design and Elevation Plan dwg file.
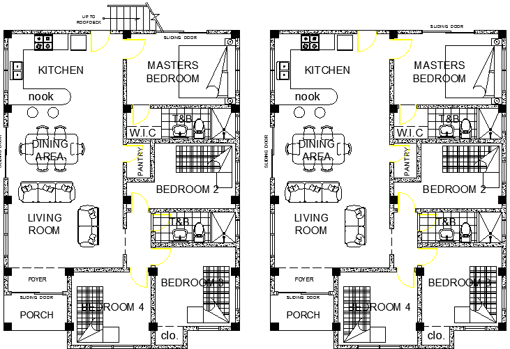
Hotel Design and Elevation Plan that shows sliding door, foyer, leaving room, dinning area, nook, kitchen, laundry, up to roof deck, master bedroom, bedrooms, toilets and bathroom, pantry and much more of house design.
Uploaded by:

