Door Frame Sectional CAD Drawing File with Detailed Measurements
Description
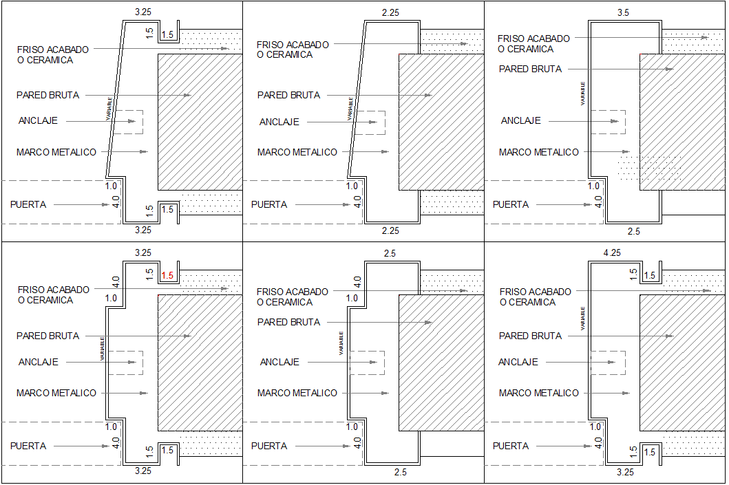
This AutoCAD DWG drawing presents a comprehensive door frame sectional layout, designed with precision for architectural and interior detailing. The drawing showcases multiple sectional views, highlighting essential components such as metallic frame joints, wall anchors, ceramic or plaster finishes, and installation measurements. Each section includes clear dimensioning and layering, providing a complete understanding of frame integration within different wall types.
Perfect for architects, civil engineers, and interior designers, this CAD drawing ensures accurate implementation in residential, commercial, or institutional projects. The detailed annotations make it an ideal reference for design documentation, site execution, and construction planning. With consistent labeling of wall thickness, anchorage positions, and door fittings, professionals can save valuable drafting time while maintaining accuracy. This file can be easily modified in AutoCAD for customized applications and serves as a ready-to-use template for door frame detailing in architectural blueprints and construction layouts.

Uploaded by:
Eiz
Luna

