Details of beams, footings and reinforced foundation
Description
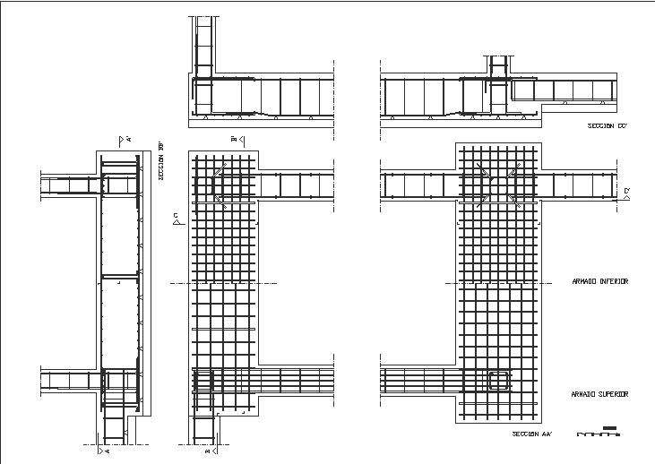
Here the detailed drawing of details of beams and footings and foundation showing sectional plan with reinforcement details of each in autocad drawing.

Uploaded by:
Niraj
yadav

Uploaded by:
yadav