School different types of furniture design view dwg file
Description
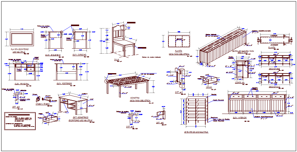
School different types of furniture design view dwg file with view of different furniture
view with dimension for school like a table with drawer,black board,chair and table
and wooden bar for library,multiple use self cabin view,sway view and sectional view
and isometric view of school furniture.
Uploaded by:

