Plan and sectional view of school with door and window detail dwg file
Description
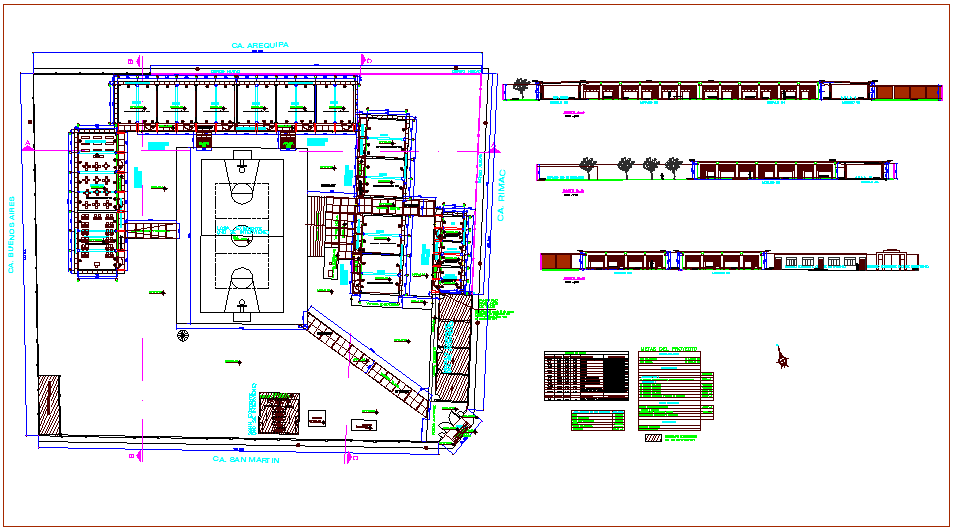
Plan and sectional view of school with door and window detail dwg file with view of plan view with entrance,room view,library,teachers room,washing area and play
ground,computer room and sectional view and door and window view.
Uploaded by:

