Installation Sanitary Electronics Structure, Section Details dwg file
Description
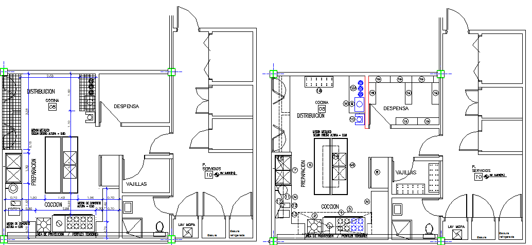
Installation Sanitary and Electronics Structure and Section Details dwg file .
Installation Sanitary and Electronics Structure and Section Details that includes wiring details, passing ways of wires, switches, boards, wire used, fuse details, power supply channel, wall construction and much more of structure details.
Uploaded by:

