General Health Center New Plant Elevation, Structure Details dwg file
Description
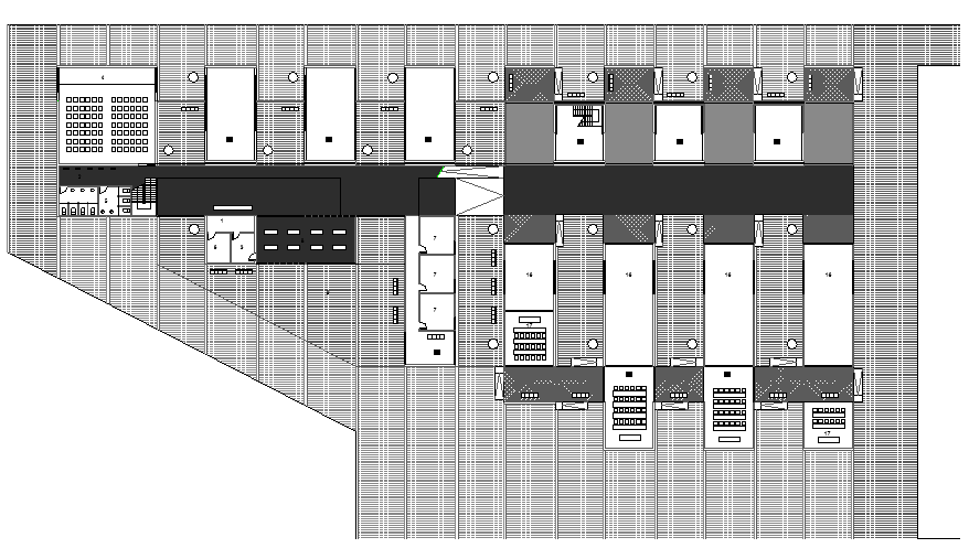
General Health Center New Plant Elevation and Structure Details dwg file.
General Health Center New Plant Elevation and Structure Details that includes main and back elevations, side elevations, classrooms, professor room, doors and windows, toilets, offices, rooms, cafeteria, reception area, meeting room and much more of the health center.
Uploaded by:

